Найти в Дзене
Войти
1,0×
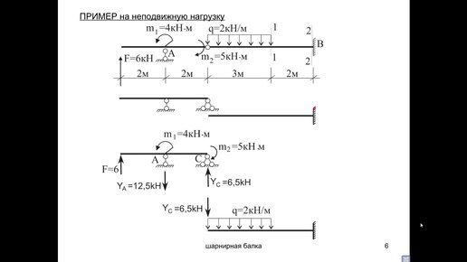
Строительная механика (2 пара)
78 просмотров · 4 года назад
00:00
/
01:17:57
Промышленное и гражданское строительство
418 подписчиков
Подписаться
1347242300.1808.1766531818816.96611