Найти в Дзене
Войти
1,0×
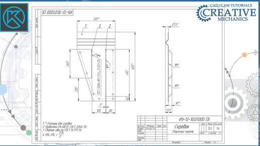
Сварные швы на чертеже в Компас 3D
1644 просмотра · 4 года назад
00:00
/
02:32
Креативная Механика
3825 подписчиков
Подписаться
Хотите видеть больше публикаций по теме «Строительство»?
Давайте
Образование
4,84 млн интересуются
Следить за темой
2268503620.1781.1761287711437.84023