Найти в Дзене
Войти
1,0×
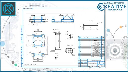
Вставка спецификации в чертёж в Компас 3D
464 просмотра · 5 лет назад
00:00
/
03:34
Креативная Механика
3999 подписчиков
Подписаться
611851715.1795.1766504826623.88788