Найти в Дзене
Войти
1,0×
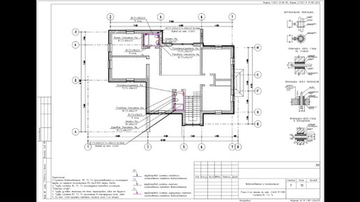
Обзор дома 315м2. Инженерный проект водоснабжения и канализации
2308 просмотров · 4 года назад
00:00
/
02:13
Проекты и загородная жизнь
1413 подписчиков
Подписаться
Хотите видеть больше публикаций по теме «Знаменитые архитекторы»?
Давайте
Знаменитые архитекторы
8742 интересуются
Следить за темой
2297275873.2223.1766986805865.63928