Найти в Дзене
Войти
1,0×
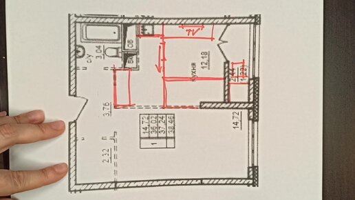
Как жить двум взрослым людям в такой маленькой квартире? Разбор планировки от подписчика.
78 тыс просмотров · 5 лет назад
00:00
/
03:31
Всем дизайн!
20,9 тыс подписчиков
Подписаться
Хотите видеть больше публикаций по теме «Дизайн интерьера и ремонт»?
Давайте
Дизайн интерьера и ремонт
1,34 млн интересуются
Следить за темой
2429680946.1938.1759678451068.53896