Найти в Дзене
Планировки

Планировки

Планировочные решения для различных типов квартир
подборка · 2 материала
Планировка квартиры
Планировочное решение двухкомнатной квартиры с маленькой кухней В прихожей предусмотрено место для хранения одежды, вешалки, пуфик для сидения, стена с зеркалом зашита гипсокартоном, чтобы скрыть щиток. В зале предусмотрен подиум для отдыха, большой диван и место для хранения в зоне телевизора с мини-баром...
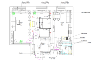
Планировочное решение для квартиры 70 кв.м. Квартира для двух человек. Прихожая, гостиная, спальня, кухня-гостиная и совмещенный санузел. Проект без перепланировки. #дизайн#дизайнинтерьера#планировка#планировочноерешение