Найти в Дзене
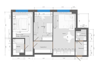
Трехкомнатная квартира в новостройке на Алтуфьево

Трехкомнатная квартира в новостройке на Алтуфьево

Материалы по процессу разработки и реализации дизайна этой квартиры для молодой пары
подборка · 8 материалов
Гостевой санузел с постирочной и ванная в новостройке ПИК: визуализации и 3D панорамы в Планоплане.
В новом отчете по дизайну квартиры в новостройке на Алтуфьевском шоссе особое внимание уделено визуализации двух санузлов. Ранее уже были разработаны объемно-планировочные решения, и теперь цель визуализации — более точная и детализированная проработка этих решений. 3D-панорама доступна по ссылке На этапе визуализации важно выбрать цветовую гамму, которая добавит планировке выразительности. Я предложил керамогранит Касабланка от Керама Марацци. Этот материал отличается натуральной эстетикой, напоминающей природный камень...
Дизайн современной минималистичной кухни-гостиной в Планоплане с постобработкой в нейросетях.
После обсуждения с заказчиками дизайна кухни-гостиной, показанном в видео ниже, я внес ряд доработок в дизайн по их пожеланиям. Я работаю в тандеме: SketchUp и Planoplan. В SketchUp я создаю модели мебели, которых нет в Planoplan, а в Planoplan собираю сцену и визуализирую её. Процесс идёт быстро, но иногда можно допустить небольшие ошибки, которые нецелесообразно исправлять повторной визуализацией на этом этапе работы. В таких случаях на помощь приходят нейросети для постобработки изображений. Заказчикам хотелось бы, чтобы холодильник был встроен в нишу между боковой панелью мебели...