Найти в Дзене
Я ВЛЮБЛЕНА! 27 ArchiCAD для интерьеров

Я ВЛЮБЛЕНА! 27 ArchiCAD для интерьеров

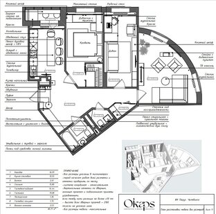
Подобное со мной случалось только с 25 версией,тогда,когда появились красивые развертки согласно 3д настройкам.
подборка · 1 материал
Привет! Меня зовут Оксана и я черчу. Нет,нет,я уже руководитель студии и я обучаю. В какой-то момент мне стало скучно просто чертить и собирать классные альбомы. Я решила,что мне надо 1.Автоматизировать процесс подсчета. Так,чтобы больше не страдать о площадях отделки 2.Создать и Регламентировать шаблон чертежей для каждого типа проектов. ( Дизайн,Архитектура,Ланшафт) 3.Превратить работу в этой программе в искусство. И у меня получилось, и я давно была бы миллионершей или,как минимум любимицей сотни дизайнеров и архитекторов,но я - жадина. Мне все время было жалко просто так брать и сливать ту структуру,к которой я шла через десятки обучений 1.По этому я разрабытываю шаблоны в Архикад для студий + обучаю персонал работе в нем. Запомните,ребята,просто взять и купить шаблон - бесполезная трата денег. Мало сесть на тренажер,надо еще знать,как им правильно работать ;) 2.Провожу индивидуальные занятия с действующими коллегами. За 40 минут закрываю пробелы в знаниях, о которых они и не догадывались. 3.Не хочу писать курс для новичков.Ну не возбуждает меня это.Совсем. В ДЗЕНе я планирую записывать поэтапно занятия по созданию шаблона,так-же,как я делаю это со своими учениками. Тут не будет уроков "Как поставить стул" и как "Крутить колесиком мыши"... а может и будет ;)