Найти в Дзене
Разбор планировок

Разбор планировок

▷ Кейсы из практики ▷ Обзор планировки от застройщиков ▷ Как выбрать хорошую планировку
подборка · 1 материал
135 читали · 6 месяцев назад
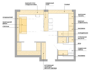
Кейс из практики: планировка 1-комнатной квартиры 34 кв.м. для девушки + фото реализации
В этой статье я расскажу про планировочное решение в проекте. Результат и реализация дизайн-проекта в конце статьи 👇 Заказчица пришла с запросом сделать многофункциональное пространство. Так как квартира с небольшой площадью, она хотела получить мебель-трансформер. Плюс у заказчицы очень много вещей, она любит порядок. Поэтому ей было важно хорошо организовать хранение. Она попросила сделать вместительную гардеробную. Так как это апартаменты, серьезных ограничений по планировке не было. Но в УК попросили сохранить границы санузла...