Найти в Дзене
Мои проекты

Мои проекты

Здесь расскажу про самые интересные проекты и их истории
подборка · 5 материалов
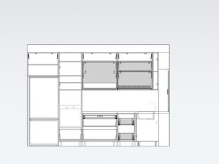
Белые классические кухни - эскизы
Покажу вам последние два проекта белых кухонь. Один проект это разговор об Икее, и кухни в этом стиле. А второй проект просто что-то светленькое, в классическом стиле и относительно недорого. Итак, первый проект, это переделка кухни Икея. Низ тут трогать нельзя, потому что фасады стандартные, а вот верх я прорисовывала заново. Первый эскиз я накидала, с широкими дверками по 60см. Но такая картинка мне не понравилась. Поэтому следом я нарисовала другую, где фасады сделала чуть-чуть иначе. Такой верх мне понравился больше...
Проект с плитой в углу
Сегодня ко мне в салон пришла пара для расчета стоимости кухни. А для того чтобы посчитать, надо сначала понимать, что считать. От руки нарисованная схема с видом сверху мне сразу не понравилась, захотела сделать другой макет. Дело в том, что на эскизе варочная плита размещалась в угловой трапецевидной базе, со специальной вытяжкой сверху. Такие базы я не люблю. Места занимают много, а толку от них немного. Дверца небольшая, и пользоваться огромным пространством через узкую дверь - непросто. Поэтому от такой конструкции я стала отговаривать...
Кухня с вентиляционной шахтой
Самые непростые проекты, это кухни с вентиляционной шахтой. Это могут быть совершенно разные конструкции, которые не позволяют сделать стандартную мебель. Такие проекты я стараюсь отрисовывать без клиентов, потому что за 20-30 минут нашего личного общения, что-то быстро придумать, не всегда получается. И часто бывает, что разочарованный клиент грустно уходит с тем, что мы нарисовали. А через какое-то время в моем мозгу начинают появляться новые схемки. Если телефон клиента остался, могу отправить проект с мыслями на ватсап...
Еще одна нестандартная кухня
Просматривая мебельные истории не могу не вспомнить одну нестандартную кухню, которую мы ставили уже года три как назад. Изначально на эскизе все было просто, но почему то одни из производителей кухонь после замера, просто не взялись делать такую мебель. Кухня действительно непростая, а наши клиенты после длительного ремонта и уже пережившие не один мебельный заказ - люди внимательные и бывалые. Но главное, что очень важно в нашем деле, понимающие и стойко относящиеся к исправлениям. А их было не мало, если быть честными...
История очень нестандартной кухни
Расскажу о давнем, но очень интересном проекте маленькой угловой кухни. Как-то ко мне в салон подошла одна пара, которая попросила посчитать столешницу из искусственного камня. На первый взгляд казалось, что ничего сложного в этом нет. Угловая кухня, мойка находится в углу... Да только мойка нужна из искусственного камня, да еще и очень нестандартной формы. Так как "нестандарты"мне уже были известны, я спросила, точно ли они смогут встроить такую мойку в корпус. Ведь для этого вся кухня быть сделана совсем иначе...