1 месяц назад
Лучшие компании по производству металлоконструкций в Москве 2026: рейтинг ТОП-7 заводов, цены и как выбрать производителя
Мы подготовили рейтинг лучших компаний по производству металлоконструкций в Москве. В обзор 2026 года вошли надёжные производители, для которых точность проектирования и качество сборки требуют высокой квалификации. При отборе учитывали опыт специалистов, безопасность процессов, техническое оснащение, прозрачность цен и отзывы клиентов. Сотрудничество и размещение рекламных материалов по почте: rating.guide@yandex.com или в ТГ: @rate_pr Опыт и специализация компании. Оценивайте, сколько лет организация работает на рынке и с какими видами металлоконструкций она чаще всего работает...
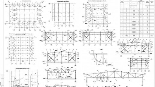
КМ, КМД и Т.Д. Разбираемся в проектной документации
Если описать КМ и КМД простыми словами, то: КМ – это "Общий вид будущего объекта", а КМД – это "Кирпичи в кладке и способ, которым они положены". КМ - конструкции металлические Это общий раздел проектной документации.  В КМ определяются вид металлической конструкции,  сталь ее изготовления, расчеты, чертежи и схемы. Чертежи КМ разрабатываются  на основе полученного технического задания от заказчика. В процессе проектирования учитываются назначение конструкции, возможные нагрузки с учетом климатических условий, технологические требования к монтажу и строительству объекта...
Трубы НКТ: рабочая основа нефтяных и газовых скважин
Трубы НКТ — это насосно-компрессорные трубы, без которых невозможно представить работу нефтяных и газовых скважин. Именно по ним поднимается нефть, газ или вода на поверхность, а также подаётся рабочая среда внутрь скважины. Это не просто трубный прокат, а специализированный инструмент, который работает в условиях давления, температуры и агрессивных сред. Если обычная труба — это «корпус», то НКТ — это «кровеносная система» скважины. Насосно-компрессорные трубы изготавливаются по строгим стандартам...
Лист холоднокатаный 1,5×1500×3000 из стали 08пс: ровный, чистый и удобный в работе
Стальной лист толщиной 1,5 мм, шириной 1500 мм и длиной 3000 мм из стали 08пс — это классический материал для задач, где важны ровная поверхность, точные размеры и хорошая обрабатываемость. А пометка «промасленный» означает, что лист дополнительно защищён от коррозии при хранении и перевозке. Это тот самый прокат, который часто выбирают для дальнейшей штамповки, гибки, сварки и окраски — без лишней подготовки и сюрпризов в процессе. Холоднокатаный лист получают путём прокатки стали при комнатной температуре...