9 месяцев назад
Точность в металле: почему профессиональная разработка КМД — залог успеха вашего проекта
В мире промышленного и гражданского строительства есть невидимые герои — детально проработанные чертежи КМД (конструкции металлические деталировочные), без которых невозможно возвести ни одно современное здание с металлическим каркасом. Это своеобразный "язык", на котором инженерная мысль превращается в реальные конструкции. Но почему так важно доверять разработку КМД профессионалам и какие преимущества это дает вашему проекту? Разберемся в этом вместе. КМД — это рабочие чертежи, по которым непосредственно изготавливаются металлоконструкции...
1 год назад
Зачем нужна КМД, и почему без неё возникают трудности при производстве и монтаже металлоконструкций?
Производство и монтаж металлоконструкций — это сложный и ответственный процесс, который требует точности на каждом этапе. Одним из ключевых элементов успешного выполнения проекта является наличие чертежей КМД (конструкции металлические детализированные). Многие недооценивают их важность, что приводит к ряду проблем на стадии производства и монтажа. В этой статье мы расскажем, зачем нужны чертежи КМД и какие трудности могут возникнуть без них. КМД (конструкции металлические детализированные) — это...
1 месяц назад
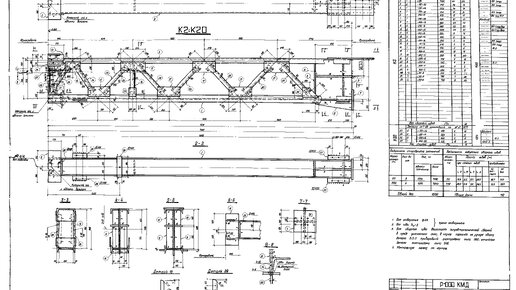
Как мы делаем КМД для металлоконструкций: от проекта до отгрузки
Автор: Инженерный центр InnoQuest Solutions Каждый, кто хоть раз сталкивался со строительством, знает: металлоконструкции — это скелет здания. И если в этом скелете хоть одно соединение не совпадает, стройка встаёт. Виноваты, как правило, не сварщики и не монтажники, а чертежи КМД, по которым они работают. В этой статье мы приоткроем завесу и расскажем, как в InnoQuest Solutions проходит разработка КМД — от получения задания до передачи готового пакета документации. Это не просто теория, а наш реальный ежедневный процесс...
КМД Расшифровка в Строительстве: Что Это?
Цель этой статьи — предоставить полное понимание о том, что такое КМД в строительстве, и как это используется в практике. После прочтения вы будете знать, как расшифровывается КМД, зачем оно нужно и как его применять в строительных проектах. В этой статье мы рассмотрим: Эта статья предназначена для инженеров, техников, студентов строительных специальностей и всех, кто интересуется проектированием и строительством. КМД расшифровывается как "Конструкции Металлические Детализированные". Это комплект...