Как сделать замеры помещения без/для дизайнера или архитектора? И обойтись без уточнений и "перезамеров".
Ну бывает так, что вы в одном городе, а дизайнер в другом. И с каждым годом такое встречается все чаще. Самый простой вариант решения задачи - обратиться за данной услугой к ним же или профессиональным замерщикам, но уже в своем городе. Еще лучше, - в специализированные компании, которые работают с 3D-лазерами, делая объемные замеры, предоставляя самые точные данные, которые к тому же позволяют "вернуться" в помещение виртуально в любой момент. Но, не всем такое нужно и необходимо, поэтому эта статья-инструкция создана для вас...
4 года назад
Как сделать замеры квартиры правильно? Инструкция для новичков
Знание того, как правильно измерить площадь квартиры, поможет вам во многих проектах по благоустройству дома. Например, при необходимости поменять напольное покрытие или покрасить стены в желаемый цвет. В зависимости от причины, по которой вам необходимо измерить комнату, необходимо проводить разные замеры. Например, если вы укладываете пол, вам нужно знать его площадь. Это может быть сложно, если вы никогда этого не делали раньше. Ситуацию также может усложнять установленные ранее дополнительные функции, такие как скошенные потолки, ниши и эркеры...
3 недели назад
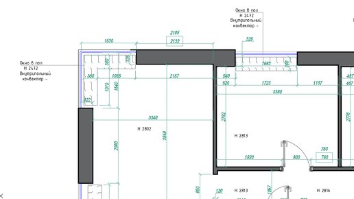
Как сделать замер дома или квартиры перед началом ремонта
Как сделать замер Зачем? План от застройщика или БТИ не всегда отражает действительность. И на плане максимум указаны площадь и периметры основных комнат. Что замеряем? ВСЁ. Все: Это изначальные данные с чем предстоит работать, при замере сразу оцениваются на жизнеспособность и соответствие все элементы: отделки, коммуникаций и систем жизнеобеспечения. Чем можно пренебречь при замере - всем что однозначно претерпит изменения. Алюминиевая проводка, подлежит замене, в идеале её требуется извлекать из стен...