1448 читали · 5 лет назад
Как сделать планировку в студии 22 кв.м.? Советы дизайнера.
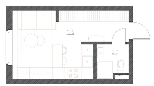
Планировочное решение "до" Планировочное решение "после" Друзья Всем привет! Хочу поговорить на тему маленьких студий, т. К. В больших городах недвижимость стоит дорого, и для некоторых людей лучшим вариантом решения этой проблемы становится квартира-студия...
214 читали · 7 месяцев назад
Как сделать кровать своими руками: Полное руководство от А до Я
Создать кровать своими руками – это не только возможность сэкономить деньги, но и шанс получить идеальную конструкцию, которая будет соответствовать вашим требованиям по размеру, стилю и комфорту. Кроме того, самодельная кровать будет надёжнее и долговечнее магазинных аналогов, ведь вы сами будете контролировать качество материалов и сборки. Давайте разберёмся пошагово, как сделать кровать своими руками: от выбора материалов до финальных штрихов. Перед началом работы важно выбрать тип конструкции, ведь кровати бывают разные: ✔ Классическая кровать на ножках – самая простая в изготовлении...