Как самому построить дом в период самоизоляции
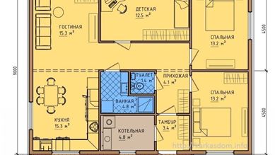
Как самому построить дом в период самоизоляции Я начал стройку с нуля 30.03.2020г. Работал один по выходным, в отпуске и иногда после работы (от дома участок в 15 минутах езды на автомобиле). Решил, что оптимальнее строить каркасный дом, так как это дешевле, быстрее и легче. Подобрал подходящий чертеж дома (нашел на сайте karkasdom.info - КД 451, там все достаточно подробно, включая смету. Решили строить сразу достаточно большой дом (9х12=108 м2), что бы не пристраивать в дальнейшем к нему комнаты, как делают многие...
17,5 тыс читали · 5 лет назад
Как работодателю оформить самоизоляцию работников?
В настоящее время мир подвергся вспышке коронавирусной инфекции covid-19. Первые очаги инфекции появились в Китае, а затем инфекция начала стремительно распространяться по разным странам, несмотря на принимаемые властями Китая карантинные меры...