REVIT. Учимся строить любые сложные лестницы!
Создаем план дома в Revit (Урок 1. Часть 4). Построение перекрытия и лестницы
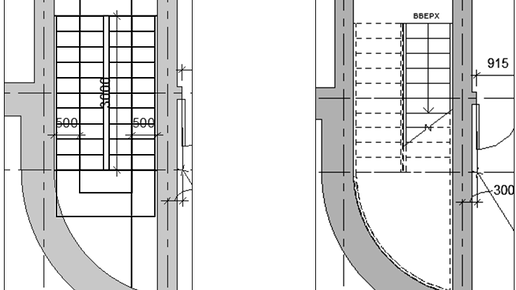
1. Построим монолитное перекрытие с опиранием на стену 150 мм: ДП: Планы этажей – УРОВЕНЬ 1; ИП > АРХИТЕКТУРА > СТРОИТЕЛЬСТВО > ПОЛ/ПЕРЕКРЫТИЕ; ПП: СМЕЩЕНИЕ = 150; Постройте замкнутый контур эскиза перекрытия, щелкнув на внутренней линии каждой наружной стены (следите за пунктиром, он должен быть внутри стены). ПРИНЯТЬ ЭСКИЗ. Перед тем, как построить лестницу, необходимо определить ее параметры и нанести вспомогательные линии. Итак: высота этажа = 3300, ширина проступи = 300, высота подступенка = 150, 1 марш – 10 ступеней, ширина марша = 900...
СЕДЬМОЙ УРОК ПО Revit. Добавление лестниц и ограждений
Откройте план 1 этажа УРОВЕНЬ 1. 1. Добавьте лестницу: ИП > АРХИТЕКТУРА > ДВИЖЕНИЕ > ЛЕСТНИЦЫ ; Щелчком мыши укажите начальную (левую – это низ) точку лестничного марша. Переместите курсор вправо и, когда число ступеней окажется максимальным (т. е. закончится прямоугольник, обозначающий полный марш), щелчком мыши укажите конец (можно указать любую точку за пределом прямоугольника). Число построенных и оставшихся ступеней динамически изменяется при перемещении курсора. Нажать зеленую галочку 2. Поставьте лестницу в угол помещения: Выберите лестницу за марш...