160 читали · 3 месяца назад
Как построить курятник своими руками: чертежи и фото
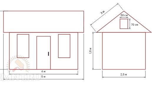
Вы решили заняться разведением несушек, но не знаете, как соорудить для них подходящее помещение? В нашей статье представлено пошаговое руководство по строительству курятника, начиная от выбора проекта строения, и заканчивая правильной расстановкой насестов и кормушек. Курятник необходимо устанавливать в тихом месте, вдали от шума транспорта и пешеходных дорог. Место должно быть достаточно освещенным и хорошо проветриваемым, но без сквозняков (причем место, где будут гулять куры, должно быть затененное)...
6 месяцев назад
Как построить курятник своими руками.
# **Как построить курятник своими руками: руководство для птицеводов-энтузиастов** Если вы решили завести кур, но не хотите, чтобы они ночевали у вас в спальне (хотя кто мы такие, чтобы осуждать?), пора строить курятник! Это не просто сарай, это пятизвездочный отель для пернатых, где есть всё: насесты, гнезда и, конечно, бесплатный завтрак (для вас, а не для них). ## **1. Планирование: курятник мечты** Прежде чем хватать молоток, подумайте: - **Количество кур** – Если у вас 3 курицы, не стройте дворец на 100 голов...