6656 читали · 4 года назад
Чертежи для изготовления лестницы своими руками
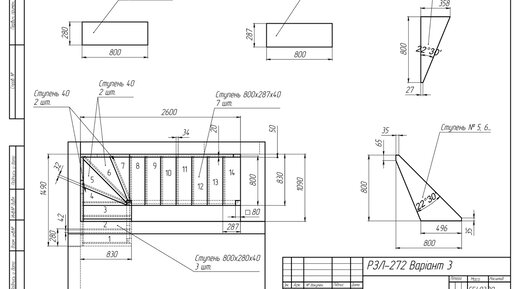
У вас есть инструмент, опыт работы с деревом и желание сделать простенькую лестницу самому, есть решение. Всем привет! Если кто не знает, что я помимо изготовления лестниц предоставляю чертежи для изготовления лестницы своими руками. В одной из статей я предлагал чертежи, а именно шаблоны для изготовления лестниц с изогнутыми формами. Теперь хочу предложить чертежи для изготовления простенькой лестницы. Будет стандартный набор чертежей для всех деталей, со всеми требующимся размерами. Но нужно понимать, что чертеж чертежом, а понимание , что некоторым деталям потребуется подклейка...
123 читали · 1 год назад
Заказ лестницы, чертёж
Что нужно для заказа лестницы? Фото проема и места, где будет стоять лестница включая и фото второго этажа. Ну и конечно, как же без него, без чертежа! Мне не нужен чертеж по всем правилам и нормам черчения, достаточно чертежа нарисованного от руки на обычном листочке. Примеры чертежей, нарисованных на "5" я вам здесь покажу, чтобы облегчить вам задачу. С "5" я конечно загнул, они все на "6". Это чертеж проема под лестницу с поворотом на 180 гр и одно фото для понимания ситуации. Просто и со вкусом, а главное все показано...