146 читали · 3 года назад
Как из однушки сделать двушку?
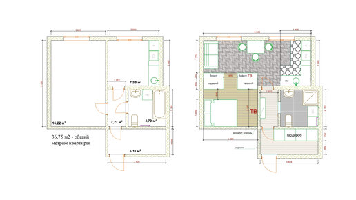
Недавно ко мне обратилась молодая семья. Они купили свою первую квартиру в новостройке и хотели создать в ней уютное пространство. Для них было крайне важно разделить зону для отдыха и кухни по отдельным комнатам. Квартира площадью 36,75 м2 с удивительно неровными стенами, что добавляло определенные сложности и большим нерациональным количеством дверей. Передо мной стояла задача разместить в однокомнатной квартире отдельную спальную зону, визуально сделав из одной комнаты две, грамотно оформить зону...
26,5 тыс читали · 7 лет назад
Как из однушки сделать двушку
Наверное, у каждого, кто проживает в однокомнатной квартире, хотя бы раз возникло желание увеличить в ней количество комнат, расширить пространство или сделать перепланировку. Причины такого желания у всех совершенно разные. К примеру, в определенный момент для семьи становится необходимым создать отдельную детскую комнату, кто-то просто хочет жить в квартире «побольше», а некоторые мечтают воплотить в жизнь необычный дизайнерский проект. Сделать перепланировку возможно и в съемной квартире. Причем...