Этапы разработки Технологических решений для кафе, ресторана, бара
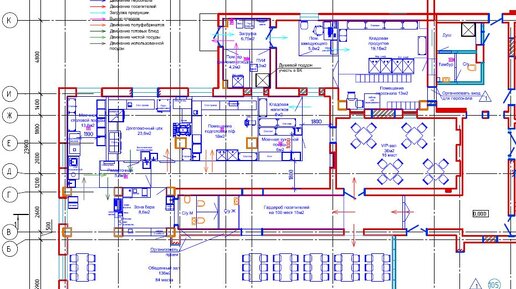
Проектирование технологических решений для предприятий общественного питания является важным этапом в создании и развитии успешного бизнеса. Это позволяет оптимизировать процессы, улучшить качество продукции и повысить удовлетворенность клиентов. Первый шаг в проектировании технологических решений - это анализ потребностей предприятия. Необходимо определить основные задачи, которые нужно решить, и выработать стратегию действий. Это может включать в себя выбор оборудования, определение процессов производства и расстановку рабочих мест...
ОБОРУДОВАНИЕ ДЛЯ РЕСТОРАНА, КАФЕ - вторая сила ресторатора.
Знание всего производимого в мире оборудования для ресторанного бизнеса – это еще одна сильная моя черта, которой я могу быть полезна ресторатору. Около 10 лет я работала в компаниях-поставщиках оборудования «Торговый Дизайн» и «Русский Проект» технологом-проектировщиком и руководителем проектов комплексного оснащения. Естественно, изучала оборудование и всех фирм-конкурентов на рынке. Почему так важно сегодня хорошо разбираться в нем? Потому что от него в итоге зависит производственная мощность вашей кухни, то есть та нагрузка, которую способна выдержать кухня...