Сколько стоит ремонт в ванной. 3 разных способа расчета.
Сколько стоит ремонт ванной? Делюсь расчетом с реальными ценами!
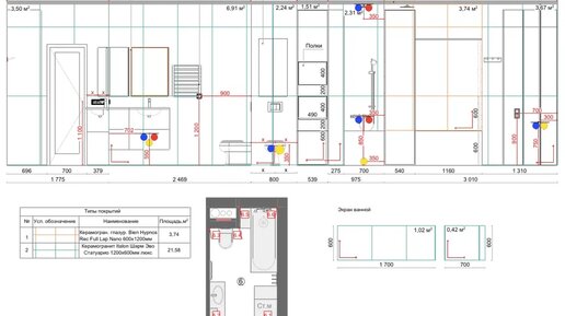
Ремонт ванной в пересчете на м2 стоит гораздо дороже, чем ремонт любой комнаты. Поэтому крайне важно заранее знать, во сколько он обойдется. В этой статье я покажу пример подробного расчета сметы на примере реального дизайн-проекта. Дочитайте до конца, и вы сможете самостоятельно узнать стоимость ремонта своей ванной! 🔥 ПОДПИШИТЕСЬ, чтобы читать новые статьи о ремонтах первым! Запланировали ремонт? Точную стоимость всего ремонта вы можете получить в этом калькуляторе Domeo -> https://domeo.ru/remont...