Дизайн-проект
Подготовка проектной документации под дизайн-проект
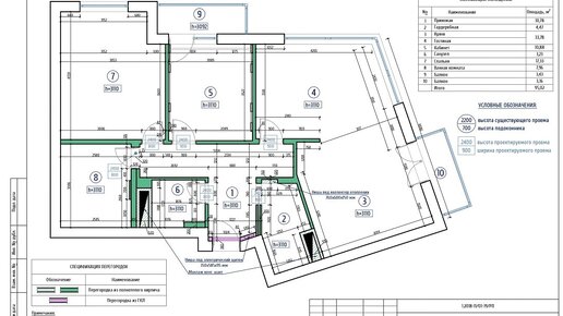
Когда основная идея интерьера выработана и согласована, начинается один из самых сложных этапов: подготовки проектной документации. В данную работу входят очень точные расчеты и правильный подбор всех соответствующих материалов...