Прокладка кабеля в квартире.Прокладка кабеля в штробе
Прокладка кабеля в квартире. Этап 2.
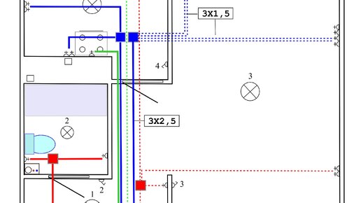
Добрый день для всех, кому нравится читать мои изложения, и спасибо всем, кто читает! Ну, во-первых, я тут немного подумал, слава богу, ещё помню как это делается, после сидения дома и наедания живота 😂. Не складываются у меня пазлы, не хочется нахлёстывать одно на другое, хочу прописать все по порядку, что бы не было скачков вперёд и назад. Обещал прописать всё окончательно по электрике, прописываю, но не спешите раньше времени кидаться на монтаж. Дочитав до конца - поймёте почему. Поехали! Самое...
Прокладка кабеля в квартире: всё, что нужно знать.
Прокладка кабеля в квартире – задача, требующая аккуратности и знаний. Неправильно выполненная работа может привести к проблемам с электроснабжением, пожарам, а также испортить внешний вид помещения. Эта статья поможет вам разобраться в основных аспектах процесса. Какие вопросы возникают при прокладке кабеля в квартире? Перед началом работ стоит задать себе ряд важных вопросов: Этапы прокладки кабеля: Заключение: Прокладка кабеля в квартире – ответственная задача, требующая внимательности и соблюдения правил безопасности...