Проект одноэтажного дома 70 м2. Симпатично, уютно, недорого!
Проект одноэтажного дома 70 м2 с 2 спальнями
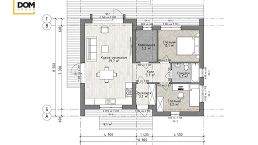
Небольшой одноэтажный дом рассчитан на проживание семьи с 1-2 детьми. В планировке предусмотрены две небольшие спальни, котельная под газ и санузел с ванной. Преимущества данной планировки - просторная кухня-гостиная с выходом на открытую террасу. - Общая площадь - 70 м2
- Габариты дома - 8,5 x 10,8 м
- Кол-во спален - 2 шт Технические особенности Материал наружных стен газобетон с облицовкой фальцем и планкеном по фасаду. В качестве фундамента в данном доме выбрана монолитная плита с рёбрами жёсткости, как видим - цоколь тут минимальный...
Проект одноэтажного дома 70 м2 с двумя спальнями
Представляем стильный и продуманный до мелочей проект одноэтажного дома 70 м2. Проект одноэтажного дома 70 м2 - симпатичный дом с эргономичной планировкой. Общая площадь составляет 70,43 м2. Площадь террасы 12 м2, площадь крыльца 3,04 м2. Помещения в доме: две спальни, два санузла, просторная кухня-гостиная, холл, тамбур, гардеробная. Проект идеально подойдет для семьи из 3-4 человек. Варианты цвета фасада: «серый» и «карамель»...