5 лет назад
Технический дизайн проект квартиры. Пример дизайн проекта
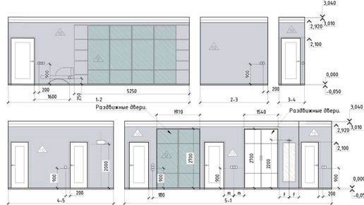
После того, как мы дали формулировку эскизному дизайн проекту, можно теперь разобраться, что такое технический дизайн проект квартиры. Технический проект дает ответы на вопросы, такие как: «На какой высоте разместить розетку для холодильника», «Какие типы светильников и какое количество необходимо на потолке», «Какой выключатель выключает свет на кухне» и многие другие. Часто, заказчики на месте самостоятельно указывают строительным бригадам, где располагать розетки, выключатели, точки подвода воды,...