Планировка дачного домика с баней
В прошлой статье я показала, какой будет наша баня снаружи. Сейчас хочу поделиться её внутренней планировкой. На фото ниже, планировка бани которой мы вдохновились изначально. Но, потом решили, что хотим не просто баню, а домик круглогодичного проживания. Тем более, что сейчас мы живём на съемной квартире. И хочется как можно скорее перебраться на свою землю. Дети уже выросли и живут отдельно. А для нас с мужем, для начала, и одной комнаты достаточно. Но, обязательные условия: нужен санузел и кухня...
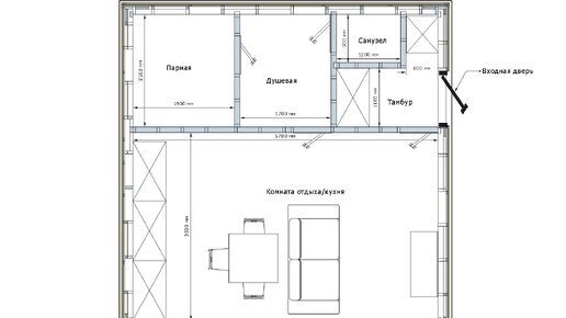
Планировка дачного домика с баней (продолжение)
Примерно год назад я писала статью про планировку своего домика-бани. Вот здесь можно её прочитать полностью. В комментариях тогда разгорелось бурное обсуждение планировки. За что я очень благодарна всем тем, кто высказал своё мнение. Потому что, проанализировав все предложения и замечания от моих читателей, я пересмотрела и немного переделала свой вариант. Сейчас хочу поделиться окончательным вариантом планировочного решения и набросками дизайн-проекта. Вот такую планировку я хотела сделать изначально...