45 этапов ремонта квартиры в новостройке Пошаговый план ремонта
Этапы ремонта квартиры: ваш идеальный план преобразований
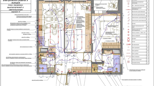
Когда приходит время обновить ваше жизненное пространство, ремонт квартиры может показаться сложным и утомительным процессом. Но не волнуйтесь! Мы подготовили для вас пошаговое руководство по всем этапам ремонта, чтобы вы могли легко справиться с этой задачей и создать дом своей мечты. Первый шаг к успешному ремонту — это тщательная оценка состояния вашей квартиры. Пройдитесь по каждому помещению и зафиксируйте все проблемы: трещины в стенах, изношенные полы, проблемы с электрикой и сантехникой. На основе этой информации составьте подробный план ремонта. Подсказка: Не забудьте учесть функциональность каждого помещения...