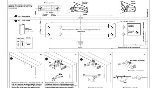
Инструкция по установке системы доводчиков Jootoon Li L6
Как установить дверной доводчик: учебник по правильной установке и настройке
Установка дверного доводчика – это важный шаг в обеспечении безопасности вашего дома или офиса. Дверной доводчик – это приспособление, которое автоматически закрывает дверь после ее открытия. Он обеспечивает плавное и контролируемое закрывание двери, предотвращая ее случайное открывание или захлопывание. Перед установкой дверного доводчика необходимо выбрать подходящую модель в соответствии с весом и шириной вашей двери. Установка доводчика требует определенных навыков и инструментов, поэтому, если вы не уверены в своих способностях, рекомендуется обратиться к профессионалам...
Установка доводчика двери на наружную и внутреннюю ее части
Доводчики – приспособления для автоматического закрытия двери, используются в жилых и промышленных зданиях, выполняющих незаметно свою работу, при правильной установке и обслуживании. Виды доводчиков Прежде чем производить монтаж доводчика двери, стоит познакомиться с их разновидностями. Основные типы конструкций по способу установки, представлены в таблице: Тип доводчикаОсобенности Крепление устройства проводится поверх дверной коробки. Монтируется заранее, при ремонте помещения. Иначе, после окончания всех работ, установить доводчик двери своими руками, будет невозможно...