Этим секретом поделился строитель ,как сделать ленточный монолитный Фундамент.
Фундаменты ленточные малозаглубленные монолитные железобетонные для мини дома с трехслойными кирпичными стенами и утеплителем.
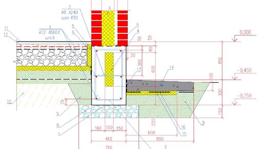
Фундаменты ленточные малозаглубленные монолитные железобетонные являются универсальным вариантом и представляет собой замкнутый контур из бетонных лент, которые повторяют наружные и внутренние стены строения и заглубляются в грунт на 300 мм или более и обеспечивает прочную и устойчивую базу под мини дом. Конструктивные решения фундаментов определяются в основном гидрогеологическими условиями. Для строительства одноэтажного дома нет необходимости брать пробы грунта бурением в различных местах. Достаточно выкопать шурф (яму) 1000 х 100 мм глубиной 1,5-2,5 м...
Ленточный фундамент: от расчета бетона до заливки
Узнайте, что такое ленточный фундамент, его виды и характеристики, а также как сделать ленточный фундамент своими руками. Полное руководство по созданию надежного фундамента и расчету бетона. Содержание: Введение 1.1 Виды по способу строения 1.2 Виды по глубине заложения в грунт 4.1 Проектирование ленточного фундамента 4.2 Расчет бетона для ленточного фундамента 5.1 Зачем утеплять ленточный фундамент? 5.2 Когда утепление обязательно? 5.3 Когда утепление не обязательно? 6. Лайфхаки от профессионалов...