2357 читали · 3 года назад
Супер проект одноэтажного дома для узкого участка
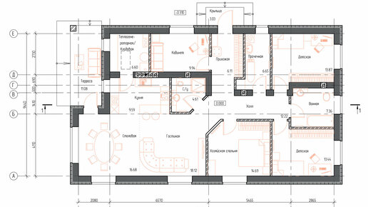
Если у вас узкий участок, 14-16 м шириной, присмотритесь к этому проекту. Одноэтажный компактный дом 139,8 м2, стильный, лаконичный дизайн фасада, простые формы. Такой дом не "выйдет из моды" даже спустя десятки лет. Актуальная планировка с общей зоной кухни-гостиной, продуманные места для хранения, расставленная до самых мелочей мебель - отличительные черты нашего проекта. Одноэтажный компактный дом с тремя спальнями, кабинетом, постирочной, кладовой, двумя просторными санузлами и большой кухней-гостиной...
49,9 тыс читали · 5 лет назад
Проект одноэтажного дома площадью 87м2 на 4,5 сотках
Добрый день всем читателям. В этой статье рассмотрим проект компактного одноэтажного дома для семьи из четырех человек, который мы разрабатывали как альтернативу трехкомнатной "квартиры на земле". Это прекрасное решение для тех кто ищет компактный, функциональный и уютный дом для своей семьи. Такой дом идеальный вариант для загородного строительства. Ранее уже публиковали подобные решения, но в комментариях писали, что двух спален недостаточно в доме площадью 79кв.м, а вариант на 112кв.м некоторым не подходит по габаритам...
8707 читали · 3 года назад
Мыслим как архитектор: что нужно учитывать при планировке одноэтажного дома
Строительство одноэтажных домов продолжает набирать популярность. Не удивительно, ведь такие дома прекрасно сочетаются с различными ландшафтами, а также обычно дешевле в обслуживании. Но как и у всех строений, планировка одноэтажного дома имеет свои особенности, которые важно учитывать. Об этом мы решили узнать у архитектора Ольги Киреевой (@olga_kireeva_duyunova, канал в Телеграм). — Меня зовут Киреева Ольга Дмитриевна. Я практикующий архитектор с 2009 года. Дизайном интерьера занимаюсь уже более пяти лет...