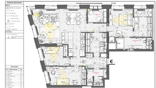
Зачем нужны чертежи в дизайн проекте квартиры или дома?
Ценность дизайн проекта – это грамотные чертежи. Распространенная ошибка владельцев квартир и домов – заказывать у дизайнера интерьера только визуализацию и принимать работу без чертежей. Чертежи – это не просто набор линий, это набор опыта, знаний эргономики, понимания комфортных размеров, оптимальной технической реализации и т.д. Согласитесь, что комфорт проживания имеет такое же значение, как и внешняя красота интерьера. Специалист понимает значение эргономики в дизайн проекте, и прежде чем приступить...
1740 читали · 6 лет назад
Дизайн-проект своими руками. Часть 2: Чертежи и визуализация
Мы уже рассказывали, что нужно подготовить к началу работы и где искать вдохновение. Сегодня будем осваивать техническую часть: научимся делать замеры, рисовать чертежи и визуализации. Как сделать точные замеры Перед замерами раздобудьте план помещения. Его можно взять на сайте застройщика или в техническом паспорте квартиры. Также план можно получить в БТИ. Эта процедура займёт время, но её всё равно придётся выполнить, если будете согласовывать перепланировку. Если план никак не получается найти, контур помещения можно нарисовать вручную...
804 читали · 6 лет назад
Чертежи в дизайн-проекте обязательны?
В распечатанном альбоме, который дизайнер выдаёт при сдаче проекта заказчику, не только 3D визуализация проекта но следующие чертежи для строителей и поставщиков: Обычно мы обходимся: 1,2,5,6,8 пунктами (от сложности проекта) На заменку. В отсутствии необходимых чертежей возникают различные сложности, которые появляются на этапах ремонта, если у вас есть только список мебели, не удивляйтесь, что в результате прикроватные тумбочки закроют розетки или мебельщики забудут оставить место для натяжного потолка...