Маша Капуки и игрушки на пляже. Видео на море для детей.
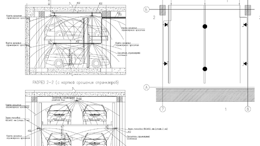
Клаус-парковка: экономия средств или легкомысленно созданный риск пожара?
Не так давно в СМИ пронеслась новость о том, что цитирую: "Средняя стоимость машино-места в Москве достигла рекордных 3,5 миллиона рублей, за год подскочив на 18%" и вторая новость к ней: "Из-за очень дорогих машиномест москвичи стали ставить автомобили друг на друга. Таким образом они экономят в среднем до 2 млн рублей. Подъёмник на два слота стоит не более 500 тысяч, в то время, как средняя стоимость машиноместа в столице уже достигла рекордных 3,5 млн рублей". Так называемые клаус-парковки или...