1078 читали · 1 год назад
Софт для электрика
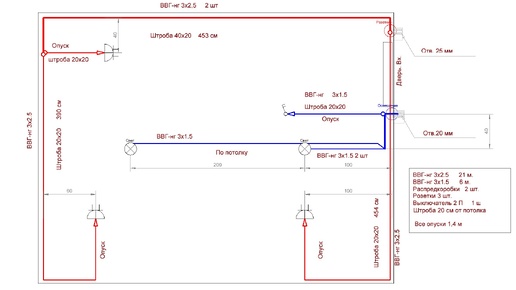
Прежде чем приступить к монтажу электропроводки, необходимо иметь схему. Причём принципиальная схема не столь важна. В основном, требуется схема монтажная. Можно, конечно, нарисовать такую схему от руки. Но с помощью компьютера, гораздо легче. И схема выглядит намного лучше. Но для компьютера нужны какие-то программы. Рисовать в Paint, сомнительное удовольствие. Хотя, вполне возможно. А вот со специализированным софтом наблюдаются некоторые проблемы. Профессиональные приложения для проектирования достаточно дорогие и сложные в освоении...
06:44
1,0×
00:00/06:44
696,4 тыс смотрели · 4 года назад
9721 читали · 2 года назад
Начинающему "Электронщику" четыре моих излюбленных схемы звукогенераторов.
Привет Друзья-любители радиосхем! Странно конечно звучит слово "Электронщик" в наши дни. Все так и норовят называть себя "Радиолюбитель" (любитель послушать радио), "Радиоспециалист" (любитель почитать электросхемы), "Электро инженер" (любитель включать в розетку вилку).... шучу ребята! Называйте себя как угодно! СХЕМА ПЕРВАЯ Что в ней странного ? Вроде все просто, но с большинством Динамических головок и капсулей для Наушников эта схема упорно отказывается работать. А ведь любому начинающему постигать азы мастерства среди проводов и контактов хочется СРАЗУ чтобы работало...