7 месяцев назад
ПЛАНИРОВКИ
ПЛАНИРОВКИ. 📍Симфония 34/3 Мы говорили ранее, что делаем дизайн в еще одной квартир в ЖК Симфония 34, даже писали пост про планировки, которые предложил застройщик и вот, наконец, показываем вам результат трудов наших, а именно планировочные решения, которые мы предложили заказчику! 📌 Пожелания заказчика: Рабочий стол у окна, стеллаж-витрина, мойка на кухне - 800, ПМ - 600, сварочная на 4 конфорки, диван раскладной, душ в строительном исполнении, места хранения, комнаты можно объединять. ✔️ Наше предложение: Вариант 1...
ЖК Symphony (Симфония) 34. Какие квартиры можно купить здесь в апреле 2024 г.
Быстро рассмотрим новостройку бизнес-класса от МР Групп в Савеловском районе (САО). Это башни ЖК Симфония 34 и сейчас они выглядят так Находятся на пересечение улиц Башиловской и 2-й Хуторской Метро Дмитровская (серая ветка) находится в 7-ми минутах пешком. Там же рядом и одноименная станция МЦД-2. ЖД пути проходят в 50-ти метрах от ближайших корпусов ЖК Симфония 34 (это корпуса Кристалл и Графит) Максимально подробно – локация, транспортная доступность, состав проекта (а еще архитектура и конструктив, планировки и цены и преимущества и недостатки) я рассказывал ранее...
Урбанистическая симфония
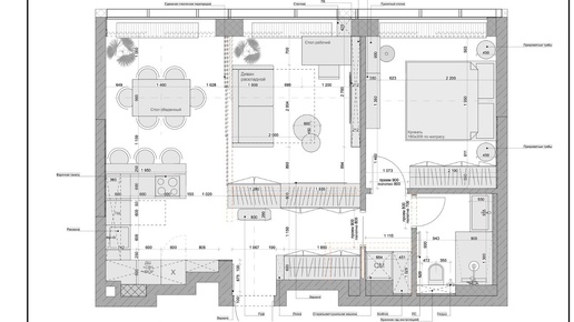
Автор проекта: дизайнер Светлана Коревская, г. Санкт-Петербург Хотя исходная планировка квартиры из-за углового расположения и наличия в центральной части холла несущей колонны квадратного сечения была слишком нестандартной, она устраивала владельца и не требовала кардинального изменения. Поэтому все желаемые корректировки жилого пространства осуществлены с помощью дизайнерских приемов. Гостиная не только компактнее других помещений, но и имеет неправильную конфигурацию, зрительно скорректированную,...