Добавить в корзинуПозвонить
Найти в Дзене
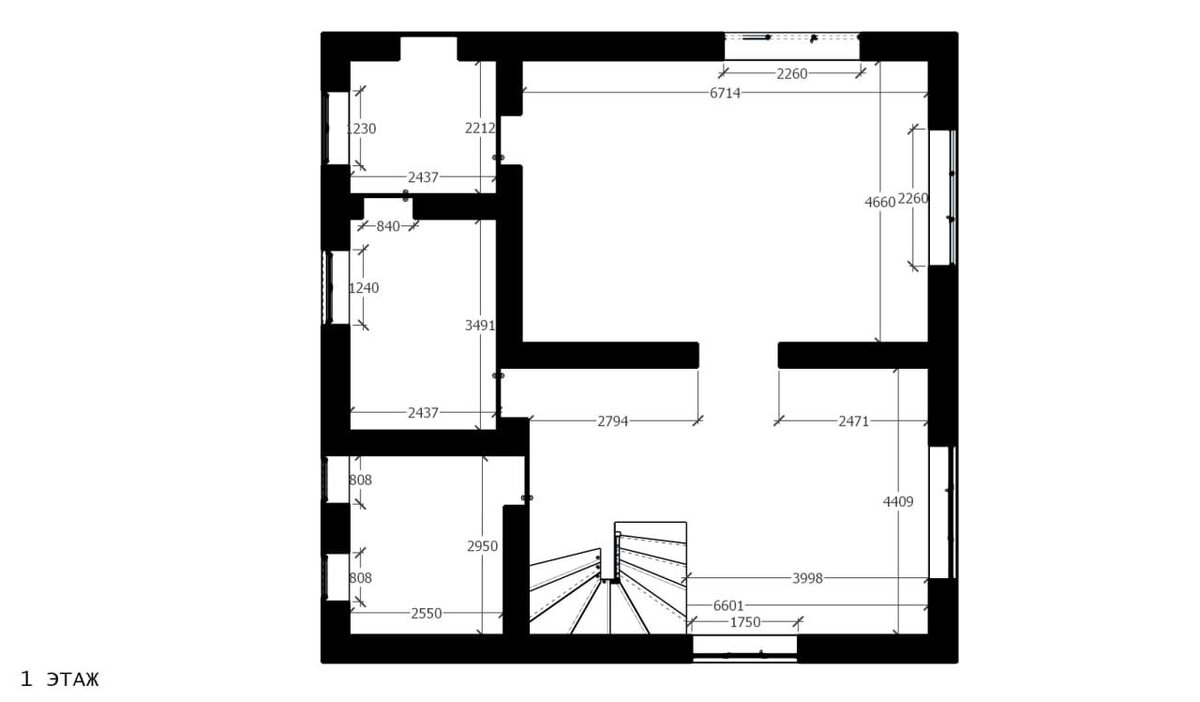
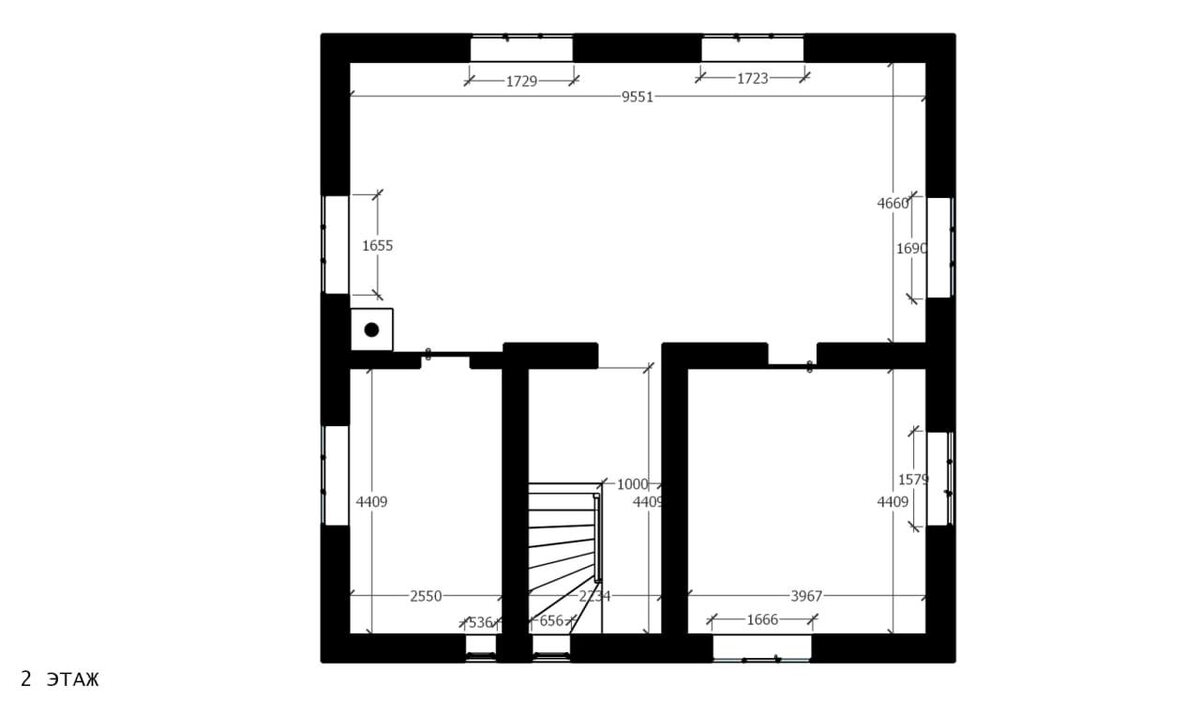
План Нехорошковой

Провела консультацию по планировке дома площадью 160м2

Разобрались, как полагается за 2 часа 👌🏻 Дом-вторичка, изменения возможны, но желательно глобально ничего не менять, не сносить. Аккуратно прошлись по планировке, восполнили недочеты: отсутствие гардеробной, большая гостиная, лестница нелогично приходящая на второй этаж. Выстроили новую логику планировочную внутри старого дома и всё заиграло! ❤️ По итогу клиенты сказали, что там хочется жить и реализовать всё это поскорее! 😉

Провела консультацию по планировке дома площадью 160м2.

Разобрались, как полагается за 2 часа 👌🏻

Дом-вторичка, изменения возможны, но желательно глобально ничего не менять, не сносить. Аккуратно прошлись по планировке, восполнили недочеты: отсутствие гардеробной, большая гостиная, лестница нелогично приходящая на второй этаж.

Выстроили новую логику планировочную внутри старого дома и всё заиграло! ❤️

По итогу клиенты сказали, что там хочется жить и реализовать всё это поскорее! 😉

-2
-3