Найти в Дзене
ПСК "Градиент"

Индивидуальный проект одноэтажного дома 89 м²: архитектурные и конструктивные решения для комфортной жизни

Устали от домов «для инстаграма» с колоннами, витражами и сотнями квадратных метров, которые потом годами простаивают? Предлагаем проект одноэтажного дома на 89,32 м². Построим без переплат и в разумные сроки. Вывод Этот дом - не про роскошь, а про здравый смысл. Он не поразит соседей, зато: Хотите рассчитать стоимость под ваш участок или узнать больше о деталях реализации? Подписывайтесь на канал
Оглавление

Устали от домов «для инстаграма» с колоннами, витражами и сотнями квадратных метров, которые потом годами простаивают? Предлагаем проект одноэтажного дома на 89,32 м². Построим без переплат и в разумные сроки.

Почему одноэтажный?

  • Нет лестниц безопасно для детей и пожилых.
  • Быстро прогревается зимой: не нужно греть лишние этажи.
  • Легко обслуживать ремонт и уборка без лестниц и подъёмников.
  • Потолки 2,7 м достаточно воздуха, но без перерасхода на отопление.

Конструктив: быстро и надёжно

  • Свайный фундамент: подойдёт для неровного рельефа и сложных грунтов. Экономия по сравнению с монолитной плитой, монтаж за 1-2 дня - даже зимой.
  • Каркасные стены:
    несущие 140 мм (достаточно для круглогодичного проживания);
    перегородки 90 мм (экономия пространства + нормальная звукоизоляция).

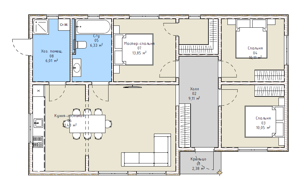
Планировка

-2

  • Кухня‑гостиная (31,48 м²) сердце дома: готовка, обеды, вечера с семьёй.
  • Мастер‑спальня (13,85 м²) личное пространство с гардеробной.
  • Две спальни (10,05 м² и 10,11 м²) для детей или гостей.
  • Санузел (6,33 м²) всё необходимое помещается.
  • Холл (9,11 м²) вешалка, полка для обуви, место для мелочей.
  • Хозяйственное помещение (6,01 м²) хранение инвентаря, сезонной одежды, инструментов.
  • Крыльцо (2,38 м²) защита входа

Для кого этот дом?

  • Для дачи: быстро построить, мало платить за коммуналку, минимум ухода.
  • Для ПМЖ: энергоэффективность, возможность добавить террасу или гараж позже, ликвидность (типовой проект проще продать).

Вывод

Этот дом - не про роскошь, а про здравый смысл. Он не поразит соседей, зато:

  • не разорит при строительстве;
  • будет тёплым зимой и прохладным летом;
  • вместит семью из 3-4 человек без ощущения тесноты.

Хотите рассчитать стоимость под ваш участок или узнать больше о деталях реализации? Подписывайтесь на канал