Добавить в корзинуПозвонить
Найти в Дзене

Фундамент под баню на участке с перепадом 1,2 м в Истринском районе

Специалисты «Королевского завода свай» завершили работу на очередном интересном объекте. Это участок со сложным рельефом в Истринском районе Московской области, где перепад высоты в пятне застройки составил 1,2 м. Возвели здесь свайно-винтовой фундамент с использованием цельных свай длиной от 4 до 5,5 м. Для монтажа использовали сваекрут с длинной стрелой. Подробности и фото результата — ниже. Фундамент предназначен для бани с большой террасой. Размеры здания, включая террасу и патио — 12 × 7,5 м. Баня строится по каркасной технологии, внутри деревянного каркаса — базальтовый утеплитель. Крыша — двускатная, над террасой и патио она опирается на деревянные стойки. Постройка имеет 2 этажа, верхний этаж — мансардный, там располагается спальня с 11-метровым балконом. На первом этаже находится комната отдыха, санузел, парилка с предбанником и ряд технических помещений. По результатам расчета нагрузок и пробного завинчивания, а также с учетом перепада высоты, который в пятне застройки состав

Специалисты «Королевского завода свай» завершили работу на очередном интересном объекте. Это участок со сложным рельефом в Истринском районе Московской области, где перепад высоты в пятне застройки составил 1,2 м. Возвели здесь свайно-винтовой фундамент с использованием цельных свай длиной от 4 до 5,5 м. Для монтажа использовали сваекрут с длинной стрелой. Подробности и фото результата — ниже.

3Д-визуализация постройки, выдержка из проекта
3Д-визуализация постройки, выдержка из проекта

Фундамент предназначен для бани с большой террасой. Размеры здания, включая террасу и патио — 12 × 7,5 м. Баня строится по каркасной технологии, внутри деревянного каркаса — базальтовый утеплитель. Крыша — двускатная, над террасой и патио она опирается на деревянные стойки.

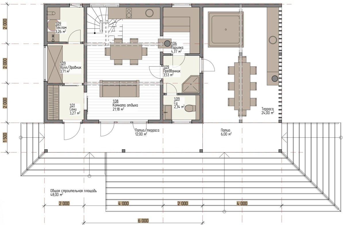
План первого этажа, выдержка из проекта
План первого этажа, выдержка из проекта

Постройка имеет 2 этажа, верхний этаж — мансардный, там располагается спальня с 11-метровым балконом. На первом этаже находится комната отдыха, санузел, парилка с предбанником и ряд технических помещений.

План второго этажа, выдержка из проекта
План второго этажа, выдержка из проекта

По результатам расчета нагрузок и пробного завинчивания, а также с учетом перепада высоты, который в пятне застройки составляет 1,2 м, подобрали сваи диаметром 108 мм в нескольких вариантах длины: 4 м — 16 шт.; 4,5 м — 10 шт.; 5 м — 18 шт.

Используем сваи разной длины, чтобы компенсировать перепад высоты разной высотой цоколя над грунтом и сформировать ровную площадку без земляных работ и изменения рельефа. Расположение свай представлено на плане ниже.

План свайного поля
План свайного поля

Стандартный самоходный сваекрут способен закручивать сваи длиной примерно до 4 м. На этом объекте требовалось закрутить сваи длиной 4, 4,5 и 5 м. В таких случаях, когда требуемая длина свай превышает возможности сваекрута, зачастую прибегают к наращиванию свай. Сваю закручивают, затем через специальный переходник к ней приваривают удлинитель и продолжают погружение до проектной глубины.

Наращивание свай — это надежный метод, но когда есть возможность использовать цельные сваи, такой вариант предпочтительнее. Здесь мы обошлись без наращивания, так как использовали сваекрут с удлиненной стрелой. Это ускорило монтаж и позволило избежать лишних сварных соединений.

Завершили монтаж обвязкой свай профильной трубой 60 × 30 мм, потребовалось 108 погонных метров.

-5
-6

Высота цоколя варьируется от 300 до 1500 мм, что компенсирует перепад высоты в пятне застройки. Выполнена обвязка металлом — обязательный элемент при такой высоте цоколя.

Все работы на объекте заняли у специалистов КЗС два дня. Заказчик может приступать к возведению бани.

Если планируете строительство на участке с перепадом, рассмотрите возможность возведения свайного фундамента из винтовых или забивных железобетонных свай. Это позволит строить без изменения рельефа и земляных работ. Закажите расчет стоимости свайного фундамента для вашего проекта у специалистов «Королевского завода свай», наш сайт — kzs.ru.