Π”ΠΎΠ±Π°Π²ΠΈΡ‚ΡŒ Π² ΠΊΠΎΡ€Π·ΠΈΠ½ΡƒΠŸΠΎΠ·Π²ΠΎΠ½ΠΈΡ‚ΡŒ
Найти Π² Π”Π·Π΅Π½Π΅

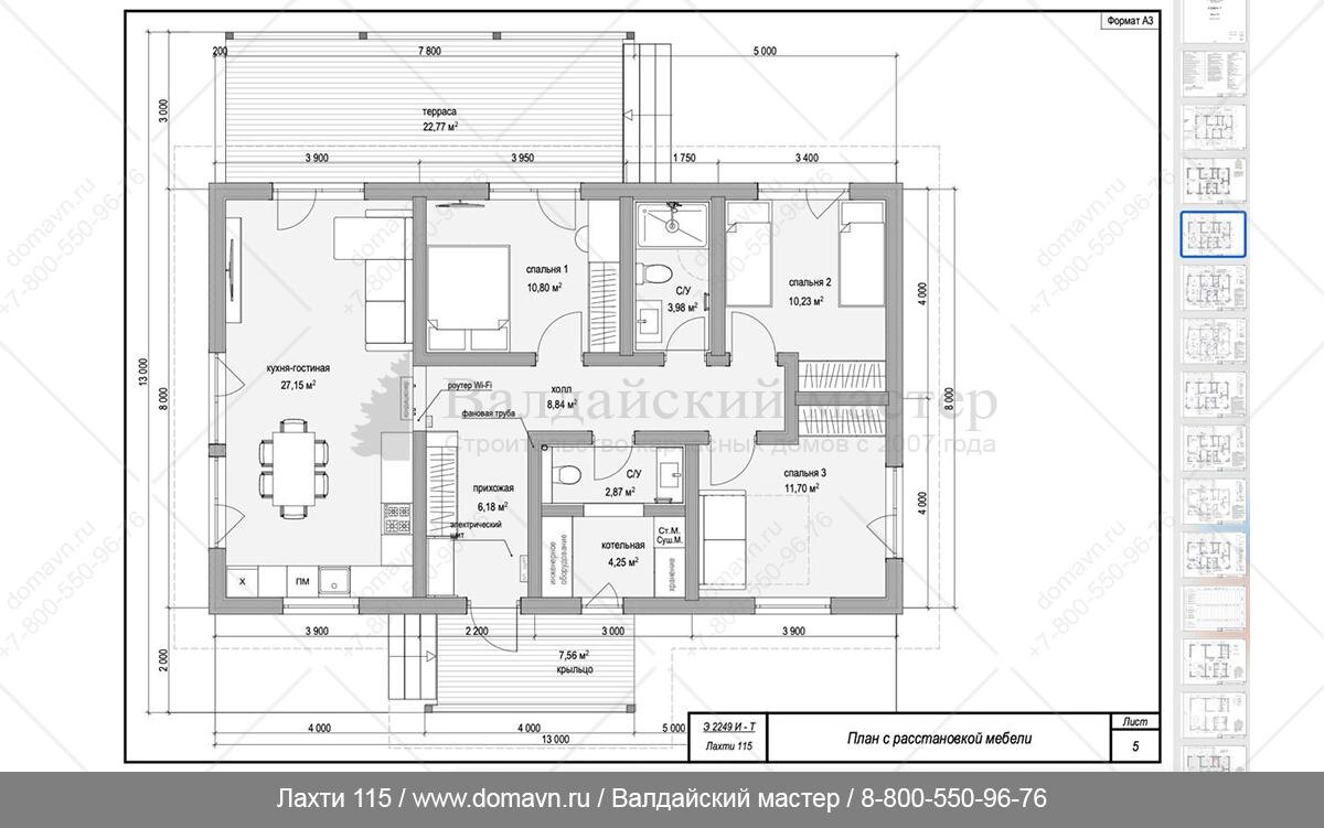
πŸ”₯ ΠšΠΎΠΌΠΌΡƒΠ½ΠΈΠΊΠ°Ρ†ΠΈΠΈ Π² Π›Π°Ρ…Ρ‚ΠΈ 115

Π€ΠΈΠ½ΠΈΡˆΠΈΡ€ΡƒΠ΅ΠΌ ΠΊΠΎΡ‚Π΅Π»ΡŒΠ½ΡƒΡŽ ΠΈ раскатываСм ΠΏΠΎΠ»Ρ‹ Π² ΠΏΡ€ΠΎΠ΅ΠΊΡ‚Π΅ Π›Π°Ρ…Ρ‚ΠΈ 115 ΠΏΠΎΠ΄ Π‘Π°Π½ΠΊΡ‚-ΠŸΠ΅Ρ‚Π΅Ρ€Π±ΡƒΡ€Π³ΠΎΠΌ. На Ρ„ΠΎΡ‚ΠΎ β€” ΠΏΡ€ΠΎΠΌΠ΅ΠΆΡƒΡ‚ΠΎΡ‡Π½Ρ‹ΠΉ этап Ρ€Π°Π±ΠΎΡ‚, ΠΏΡ€ΠΎΠ΅ΠΊΡ‚ Π±Ρ‹Π» Π°Π΄Π°ΠΏΡ‚ΠΈΡ€ΠΎΠ²Π°Π½ ΠΏΠΎΠ΄ поТСлания Π·Π°ΠΊΠ°Π·Ρ‡ΠΈΠΊΠ°. β†’ Π‘Π°Π·ΠΎΠ²Ρ‹Π΅ ΠΏΠ»Π°Π½ΠΈΡ€ΠΎΠ²ΠΊΠΈ ΠΈ Ρ†Π΅Π½Ρ‹ смотритС Π½Π° сайтС domavn.ru #Π’Πœ_строит #Π’Πœ_ΠΏΡ€ΠΎΠ΅ΠΊΡ‚Ρ‹

πŸ”₯ ΠšΠΎΠΌΠΌΡƒΠ½ΠΈΠΊΠ°Ρ†ΠΈΠΈ Π² Π›Π°Ρ…Ρ‚ΠΈ 115

Π€ΠΈΠ½ΠΈΡˆΠΈΡ€ΡƒΠ΅ΠΌ ΠΊΠΎΡ‚Π΅Π»ΡŒΠ½ΡƒΡŽ ΠΈ раскатываСм ΠΏΠΎΠ»Ρ‹ Π² ΠΏΡ€ΠΎΠ΅ΠΊΡ‚Π΅ Π›Π°Ρ…Ρ‚ΠΈ 115 ΠΏΠΎΠ΄ Π‘Π°Π½ΠΊΡ‚-ΠŸΠ΅Ρ‚Π΅Ρ€Π±ΡƒΡ€Π³ΠΎΠΌ. На Ρ„ΠΎΡ‚ΠΎ β€” ΠΏΡ€ΠΎΠΌΠ΅ΠΆΡƒΡ‚ΠΎΡ‡Π½Ρ‹ΠΉ этап Ρ€Π°Π±ΠΎΡ‚, ΠΏΡ€ΠΎΠ΅ΠΊΡ‚ Π±Ρ‹Π» Π°Π΄Π°ΠΏΡ‚ΠΈΡ€ΠΎΠ²Π°Π½ ΠΏΠΎΠ΄ поТСлания Π·Π°ΠΊΠ°Π·Ρ‡ΠΈΠΊΠ°.

β†’ Π‘Π°Π·ΠΎΠ²Ρ‹Π΅ ΠΏΠ»Π°Π½ΠΈΡ€ΠΎΠ²ΠΊΠΈ ΠΈ Ρ†Π΅Π½Ρ‹ смотритС Π½Π° сайтС domavn.ru

#Π’Πœ_строит #Π’Πœ_ΠΏΡ€ΠΎΠ΅ΠΊΡ‚Ρ‹

-2
-3
-4
-5
-6
-7
-8