Добавить в корзинуПозвонить
Найти в Дзене
DIVAN.RU

Атмосфера глубины: как дизайнеры воплотили идею «пещеры» в однушке 40 кв.м

«Наша заказчица — молодая, энергичная и образованная девушка, которая зиму проводит на Сахалине, а весну и лето — в Санкт-Петербурге, — делятся дизайнеры. — Интерьер создавался как постоянное место жительства. Учитывая ее активный образ жизни (марафоны, велопрогулки, занятия йогой), главной задачей стало формирование минималистичного пространства, где она могла бы полноценно отдыхать после насыщенного дня». Посмотрим, что получилось. Объект: однокомнатная квартира 40 кв.м в районе Черная Речка, г. Санкт-Петербург (потолки 2,6 м) Авторы проекта: дизайнеры Ольга Копосова и Виктория Егорова, стилист Наталья Стрижакова, автор фото Иван Сорокин Бюджет: 5 млн рублей Планировка от застройщика полностью соответствовала пожеланиям заказчицы, поэтому глобальных переделок затевать не стали. Единственное, что было сделано —  стену между спальней и кухней-гостиной заменили на раздвижную стеклянную перегородку, что позволило максимально расширить пространство (и физически, и визуально). Просторное п
Оглавление

«Наша заказчица — молодая, энергичная и образованная девушка, которая зиму проводит на Сахалине, а весну и лето — в Санкт-Петербурге, — делятся дизайнеры. — Интерьер создавался как постоянное место жительства. Учитывая ее активный образ жизни (марафоны, велопрогулки, занятия йогой), главной задачей стало формирование минималистичного пространства, где она могла бы полноценно отдыхать после насыщенного дня». Посмотрим, что получилось.

Объект: однокомнатная квартира 40 кв.м в районе Черная Речка, г. Санкт-Петербург (потолки 2,6 м)

Авторы проекта: дизайнеры Ольга Копосова и Виктория Егорова, стилист Наталья Стрижакова, автор фото Иван Сорокин

Бюджет: 5 млн рублей

Пожелания заказчицы

  • Темная, приглушенная цветовая гамма, без ярких акцентов.
  • Максимум мест для хранения в каждой зоне.
  • Разнообразие световых сценариев.

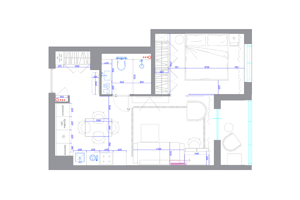
Планировочное решение

Планировка от застройщика полностью соответствовала пожеланиям заказчицы, поэтому глобальных переделок затевать не стали. Единственное, что было сделано —  стену между спальней и кухней-гостиной заменили на раздвижную стеклянную перегородку, что позволило максимально расширить пространство (и физически, и визуально).

Планировочное решение и расстановка мебели
Планировочное решение и расстановка мебели

Кухня-гостиная

Просторное помещение функционально зонировано: здесь находятся системы хранения, обеденная группа и мини-гостиная. Корпусная мебель выполнена по индивидуальному проекту с учетом потребностей хозяйки. Оригинальным решением стала витражная конструкция между высокими шкафами, дополненная подсветкой для хранения декора и сервизной посуды.

Кухня оснащена всей необходимой техникой: посудомоечной машиной, индукционной варочной панелью, встроенным холодильником, духовым шкафом и микроволновой печью. Установлена вытяжка с системой рециркуляции, что обусловлено особенностями дома — подключение к вентиляционному каналу невозможно.

➡️Товары бренда divan.ru

Просторный диван с обилием подушек стал центром отдыха в гостиной. Изящный торшер с тонкой ножкой создает завершенный образ пространства.

Декоративный теневой профиль за диваном задает ритм на самой длинной стене. Фрезеровка гипсокартона под профиль выполняется на этапе черновой отделки, а сам профиль монтируется в чистовую.
-4

Спальня

Стеклянная перегородка между спальней и кухней-гостиной визуально расширяет пространство. Для создания особой атмосферы в спальне выбрали более темный оттенок стен, который создает эффект «пещеры» для релаксации. Оригинальный акцент — декоративная отделка стены за изголовьем кровати с использованием ЛДСП. Функциональную зону хранения организовали в виде гардеробной напротив окна.

Кровать Фостер от бренда divan.ru, несмотря на свои внушительные габариты, остается неизменно популярной моделью. Она отличается плавными линиями без острых углов, что создает атмосферу уюта. Практичность модели подчеркивают подъемный механизм и вместительное хранилище, что особенно ценно для небольших помещений.

➡️Товары бренда divan.ru

Прихожая

На входе в квартиру спроектировали встроенный шкаф для одежды. Рядом, в специальной нише под инженерные коммуникации, размещен компактный хозяйственный блок.

Санузел

В совмещенном санузле установили душевую зону со стеклянной перегородкой во всю высоту помещения. Напротив установили тумбу со столешницей для хранения вещей. Над унитазом встроили мебельную конструкцию с гладкими фасадами, где скрыли дополнительное место для хранения.

💥 Выбирайте мебель и аксессуары для дома с быстрой доставкой на divan.ru и наслаждайтесь красивым интерьером уже сейчас >>

-8

============================

Оцените интерьер в комментариях, а если материал понравился — не забудьте поставить лайк👍

🖤divan.ru — не только блог про интерьеры, но и производитель доступной дизайнерской мебели. Ищите новые идеи и переходите на сайт, чтобы воплотить их в жизнь.