Добавить в корзинуПозвонить
Найти в Дзене

Дизайн-проект — это не просто красивая картинка

Главное — в деталях! 💡 Без полного комплекта чертежей (электрика, развертки, планы) и подробных спецификаций ни один проект не будет реализован идеально. Именно эти документы позволяют точно рассчитать стоимость, количество материалов и избежать ошибок на стройке. Хотите ремонт без слива бюджета и переплат? Переходите на сайт по ссылке в шапке профиля! #дизайнпроект #рабочийдпроект #чертежиинтерьера #ремонтподключ #дизайнквартиры #спецификация

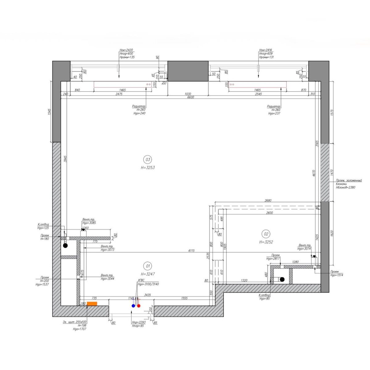
Дизайн-проект — это не просто красивая картинка. Главное — в деталях! 💡

Без полного комплекта чертежей (электрика, развертки, планы) и подробных спецификаций ни один проект не будет реализован идеально. Именно эти документы позволяют точно рассчитать стоимость, количество материалов и избежать ошибок на стройке.

Хотите ремонт без слива бюджета и переплат? Переходите на сайт по ссылке в шапке профиля!

#дизайнпроект #рабочийдпроект #чертежиинтерьера #ремонтподключ #дизайнквартиры #спецификация

-2
-3
-4
-5
-6
-7
-8
-9