Добавить в корзинуПозвонить
Найти в Дзене
Дизайн Малина

Дом как в Гарри Поттере: реальный проект замка с башнями в Екатеринбурге

Можно ли построить дом с атмосферой Хогвартса — но чтобы в нём было удобно жить?
Этот проект стал ответом. Иногда заказчики приходят не с планировкой. А с ощущением. В этом проекте всё началось с очень необычного запроса:
сделать дом, в котором будет чувство тайны, переходов, неожиданных пространств — как в историях о Гарри Поттере. Но при этом — это должен быть настоящий дом.
Не декорация. Не фантазия. А место, где живёт семья. Перед нами стояла задача: соединить две противоположности —
сказку и реальную жизнь. Так появился дом в стиле замка с четырьмя башнями.
Не просто архитектурный образ — а система пространства. Башни здесь — это не украшение. В них живут функции. — в одной — ванная с окнами в сад
— в другой — зона отдыха с круглым диваном
— в третьей — лестничный узел
— и, конечно, тот самый кабинет Круглый кабинет в башне — это отдельная история.
Он получился почти медитативным: мягкий свет, замкнутая форма, ощущение уединения. Такие пространства невозможно сделать в обычно
Оглавление

Можно ли построить дом с атмосферой Хогвартса — но чтобы в нём было удобно жить?

Этот проект стал ответом.

Иногда заказчики приходят не с планировкой. А с ощущением.

В этом проекте всё началось с очень необычного запроса:
сделать дом, в котором будет чувство тайны, переходов, неожиданных пространств — как в историях о Гарри Поттере.

Но при этом — это должен быть настоящий дом.
Не декорация. Не фантазия. А место, где живёт семья.

Авторы проекта: Татьяна Терентьева и Глеб Короп. Дизайн-студия Малина - ПРО
Авторы проекта: Татьяна Терентьева и Глеб Короп. Дизайн-студия Малина - ПРО

🏰 Дом, который собран вокруг идеи

Перед нами стояла задача: соединить две противоположности —
сказку и реальную жизнь.

Так появился дом в стиле замка с четырьмя башнями.
Не просто архитектурный образ — а система пространства.

Башни здесь — это не украшение. В них живут функции.

Авторы проекта: Татьяна Терентьева и Глеб Короп. Дизайн-студия Малина - ПРО
Авторы проекта: Татьяна Терентьева и Глеб Короп. Дизайн-студия Малина - ПРО

Каждая башня решает свою задачу:

— в одной — ванная с окнами в сад

— в другой — зона отдыха с круглым диваном

— в третьей — лестничный узел

— и, конечно, тот самый кабинет

Круглый кабинет в башне — это отдельная история.

Он получился почти медитативным: мягкий свет, замкнутая форма, ощущение уединения.

Такие пространства невозможно сделать в обычной прямоугольной комнате.

Авторы проекта: Татьяна Терентьева и Глеб Короп. Дизайн-студия Малина - ПРО
Авторы проекта: Татьяна Терентьева и Глеб Короп. Дизайн-студия Малина - ПРО

🧙‍♂️ Кабинет, в котором хочется думать

Мы специально сохранили геометрию круга.

Без «выпрямлений» и компромиссов.

В этом есть сила: пространство начинает работать на человека.

Это место для концентрации, для работы, для тишины.
И да — немного магии в нём тоже есть.

Авторы проекта: Татьяна Терентьева и Глеб Короп. Дизайн-студия Малина - ПРО
Авторы проекта: Татьяна Терентьева и Глеб Короп. Дизайн-студия Малина - ПРО

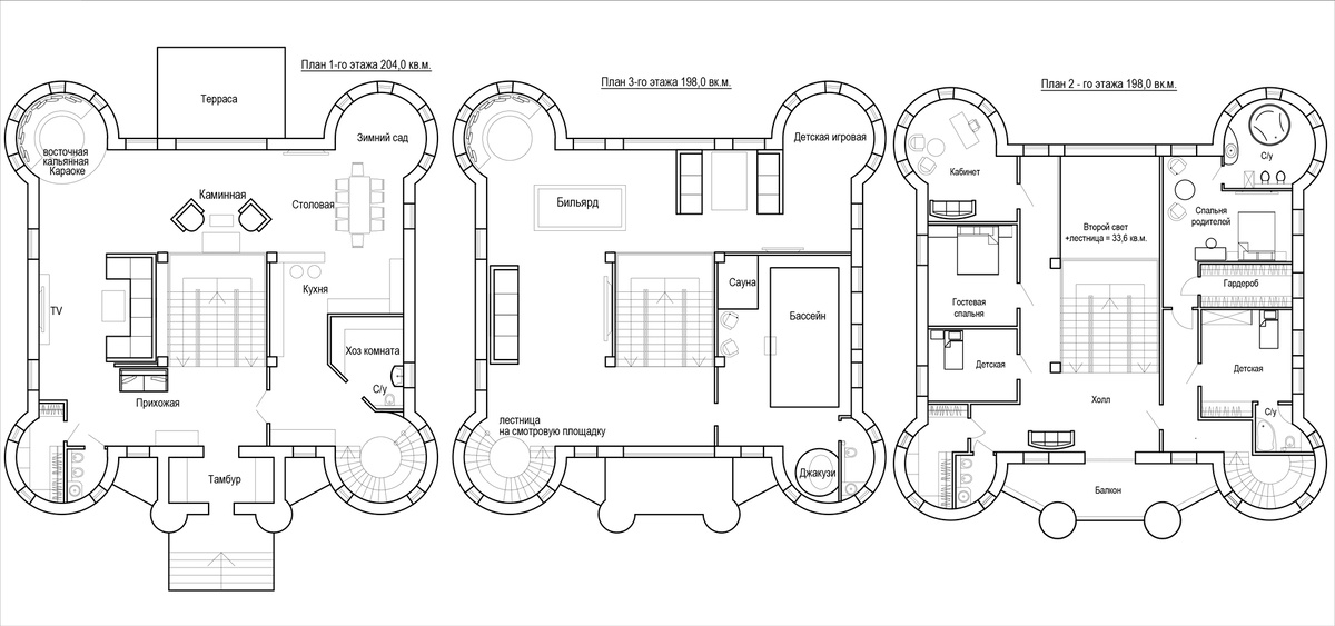
Самое важное — не потерять реальность.

Первый этаж — это открытое пространство для жизни: гостиная, кухня, столовая, камин и выход на террасу.

Второй этаж — приватный: спальни, детские, гардеробные.

Третий — почти как отдельный мир: лаунж, бильярд, витражи и даже зона с бассейном и сауной.

💡 Главная идея проекта

Мы не строили «замок».

Мы создавали дом с характером.

Дом, в котором можно жить каждый день — и при этом не терять ощущение, что ты внутри истории.

Авторы проекта: Татьяна Терентьева и Глеб Короп. Дизайн-студия Малина - ПРО
Авторы проекта: Татьяна Терентьева и Глеб Короп. Дизайн-студия Малина - ПРО

Иногда архитектура — это не про метры.
Это про состояние.

И если сделать всё правильно — даже замок может стать тёплым, удобным и очень личным пространством.

Если вы тоже хотите дом не «как у всех», а с идеей и характером —мы умеем это делать.

Благодарю, что читаете! Буду рада комментариям.

Больше проектов на нашем сайте: designmalina.ru