Добавить в корзинуПозвонить
Найти в Дзене

Обучение Revit для каркасного дома: кейс ученика и честный отзыв

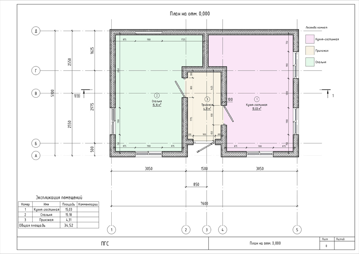
Освоение Revit сегодня становится важным шагом для всех, кто работает или планирует работать в сфере малоэтажного строительства. Особенно это касается сегмента ИЖС, где востребованы быстрые, точные и понятные проекты. В этой статье рассмотрим практический пример — проект ученика курса, который создал каркасный дом в Revit, а затем начал его строить. Традиционные методы проектирования постепенно уступают BIM-подходу. В отличие от обычных чертежей, обучение Revit позволяет создавать не просто графику, а полноценную информационную модель здания. Что это даёт на практике: Для ИЖС это особенно важно, потому что каждый лишний расход — это реальные деньги. В рамках обучения один из учеников разработал проект дачного дома размером 5,1 × 7,6 м. Это полноценная BIM-модель, выполненная самостоятельно. Ключевой момент — уровень детализации. Проект учитывает реальные размеры материалов, шаг стоек и логику сборки. Это значит, что модель можно использовать непосредственно на строительной площадке
Оглавление

Освоение Revit сегодня становится важным шагом для всех, кто работает или планирует работать в сфере малоэтажного строительства. Особенно это касается сегмента ИЖС, где востребованы быстрые, точные и понятные проекты. В этой статье рассмотрим практический пример — проект ученика курса, который создал каркасный дом в Revit, а затем начал его строить.

Зачем изучать Revit в малоэтажном строительстве

Традиционные методы проектирования постепенно уступают BIM-подходу. В отличие от обычных чертежей, обучение Revit позволяет создавать не просто графику, а полноценную информационную модель здания.

Что это даёт на практике:

  • автоматическое формирование чертежей;
  • расчёт объёмов материалов;
  • быстрые изменения без переделки проекта;
  • понятную 3D-модель;
  • снижение количества ошибок на стройке.

Для ИЖС это особенно важно, потому что каждый лишний расход — это реальные деньги.

Пример: каркасный дом в Revit от ученика

В рамках обучения один из учеников разработал проект дачного дома размером 5,1 × 7,6 м. Это полноценная BIM-модель, выполненная самостоятельно.

В проект вошло:

  • архитектурное решение;
  • моделирование каркасных стен;
  • перекрытия и лаги;
  • кровельная система;
  • монтажные схемы;
  • комплект рабочих чертежей;

Каркасный дом в Revit
Каркасный дом в Revit
Каркасный дом в Revit
Каркасный дом в Revit

Каркасный дом в Revit
Каркасный дом в Revit
-4
Каркасный дом в Revit
Каркасный дом в Revit
Каркасный дом в Revit
Каркасный дом в Revit
-7

Ключевой момент — уровень детализации. Проект учитывает реальные размеры материалов, шаг стоек и логику сборки. Это значит, что модель можно использовать непосредственно на строительной площадке.

Как проходит обучение Revit

Хорошие курсы Revit ИЖС ориентированы на результат: студент не просто изучает интерфейс, а создаёт свой проект дома.

Обучение обычно включает:

Основы программы

  • интерфейс и базовые инструменты;
  • работа с уровнями и сетками;
  • построение базовой модели.

Конструкции каркасного дома

  • стены и стойки;
  • обвязка и перекрытия;
  • стропильная система.

Работа с параметрами

  • создание семейств;
  • настройка элементов;
  • управление типами конструкций.

Чертежи и документация

  • планы и разрезы;
  • оформление листов;
  • спецификации материалов.

Практика

В итоге каждый ученик разрабатывает собственный каркасный дом в Revit.

Какие результаты даёт обучение

После прохождения курса вы сможете:

  • проектировать дома с нуля;
  • выпускать комплект документации;
  • считать материалы;
  • быстро корректировать проект;
  • готовить модель для строительства.

Это делает обучение Revit полезным как для специалистов, так и для частных застройщиков.

Отзыв ученика после курса

Самый показательный результат — это действия. Вот реальный отзыв ученика:

«Ринат, ещё раз хочу сказать Вам спасибо за курсы. Начал строить. Испытываю удовольствие. Пришлось вносить изменения под доску сухую строганную. И просить никого не надо.🤝»

Отзыв о курсах
Отзыв о курсах

Этот опыт показывает, что знания из курса можно сразу применять на практике.

Кому подойдут курсы Revit ИЖС

Такие курсы подходят:

  • начинающим без опыта;
  • строителям и мастерам;
  • архитекторам и проектировщикам;
  • инженерам;
  • тем, кто планирует строить дом самостоятельно.

Даже с нуля можно выйти на уровень, достаточный для реального проекта.

Почему именно Revit

Сравним с другими инструментами:

  • AutoCAD — подходит для чертежей, но не даёт BIM-модели;
  • SketchUp — удобен для визуализации, но слаб в документации;
  • Revit — объединяет модель, чертежи и расчёты.

Если цель — полноценный проект дома, Revit даёт больше возможностей.

Ошибки при самостоятельном обучении

Без системы часто возникают проблемы:

  • хаотичное моделирование;
  • отсутствие параметров;
  • ошибки в узлах;
  • сложности с оформлением чертежей.

Грамотные курсы Revit ИЖС помогают избежать этих ошибок и сразу работать правильно.

Практическая выгода

Освоение Revit даёт реальные преимущества:

  • экономия на проектировании;
  • уменьшение строительных ошибок;
  • возможность дополнительного заработка;
  • полный контроль над проектом.

Для ИЖС это особенно актуально, где важна каждая деталь.

FAQ

Сколько времени нужно на обучение?

Обычно от 3 до 6 недель.

Можно ли начать без опыта?

Да, обучение рассчитано на новичков.

Подходит ли Revit для каркасных домов?

Да, это один из лучших инструментов для ИЖС.

Какой компьютер нужен?

Подойдёт современный ПК среднего уровня.

Вывод

Кейс ученика показывает: освоить программу и сделать рабочий проект — реально. Более того, этот проект можно сразу использовать для строительства.

Если вы хотите:

  • разобраться в обучении Revit,
  • создать собственный каркасный дом в Revit,
  • или выйти на новый уровень в проектировании,

то курсы Revit ИЖС станут надёжной основой для старта и развития.

Выбрать курс и пройти обучение можно на сайте школы.