Добавить в корзинуПозвонить
Найти в Дзене
Жить красиво

Дизайн маленького метра — это высший пилотаж

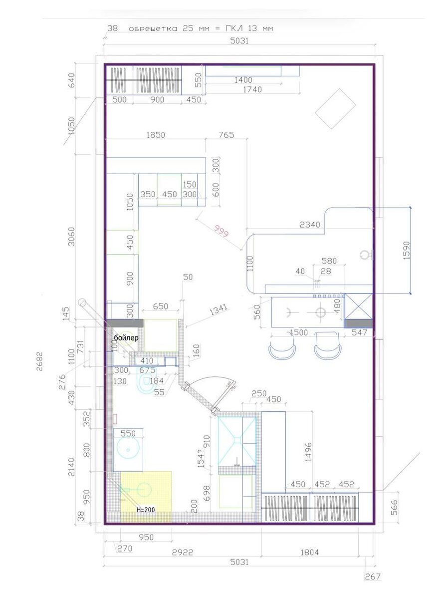
Сделать красивую планировку для просторной трёхкомнатной квартиры или дома от 150 квадратов — задача большая, но понятная. Простор прощает ошибки. А вот взять 42 квадрата и превратить их в полноценное, удобное, эргономичное жильё — вот это настоящее мастерство. И именно на таких объёмах я оттачивала свои навыки годами. Почему мне есть что сказать? У меня за плечами три разных опыта жизни именно на 42 квадратах: городская квартира, потом ещё одна, а теперь и загородный дачный домик, про который вы уже наверняка читали выше. На каждом из этих объектов я тренировалась, ошибалась, искала решения, чтобы каждый сантиметр работал. Но главное, что я вынесла за 20 лет: дизайн — это про живых людей. У каждого свои привычки, заморочки, ритм жизни. Не бывает универсальной планировки, под которую человек должен подстраиваться. Хорошая планировка — как отпечатки пальцев. Она рождается только тогда, когда ты по-настоящему услышал того, для кого делаешь дом. Даже если этот «заказчик» — ты сам. Сад

Дизайн маленького метра — это высший пилотаж

Сделать красивую планировку для просторной трёхкомнатной квартиры или дома от 150 квадратов — задача большая, но понятная. Простор прощает ошибки.

А вот взять 42 квадрата и превратить их в полноценное, удобное, эргономичное жильё — вот это настоящее мастерство. И именно на таких объёмах я оттачивала свои навыки годами.

Почему мне есть что сказать? У меня за плечами три разных опыта жизни именно на 42 квадратах: городская квартира, потом ещё одна, а теперь и загородный дачный домик, про который вы уже наверняка читали выше. На каждом из этих объектов я тренировалась, ошибалась, искала решения, чтобы каждый сантиметр работал.

Но главное, что я вынесла за 20 лет: дизайн — это про живых людей. У каждого свои привычки, заморочки, ритм жизни. Не бывает универсальной планировки, под которую человек должен подстраиваться. Хорошая планировка — как отпечатки пальцев. Она рождается только тогда, когда ты по-настоящему услышал того, для кого делаешь дом.

Даже если этот «заказчик» — ты сам. Садишься и честно отвечаешь себе: что здесь самое важное? Может быть, ощущение простора? Или конкретная вещь, без которой жизнь не мила — как у меня печь-камин?

В моей жизни был также период преподавания дизайна интерьера в SkillBox, где я рассказывала студентам о продуманном дизайне. И в том числе это дало мне дополнительную уверенность: я могу не только делать сама, но и объяснять другим. Поэтому и веду этот канал — чтобы продолжать делиться живыми, проверенными решениями.

В этом посте — только введение. А в следующей части на примере моего дачного домика 42 кв.м покажу конкретные принципы планировки: как уместить всё необходимое, соблюсти эргономику и не потерять гармонию.

Если вы тоже ломали голову над маленьким пространством — ставьте 🔥. И ждите продолжения.

#ДомСУмом

#НаставничествоДизайнеру

#планировка42кв

#дизайнмаленькихпомещений