Добавить в корзинуПозвонить
Найти в Дзене

Как сделать Дизайн-Проект самому

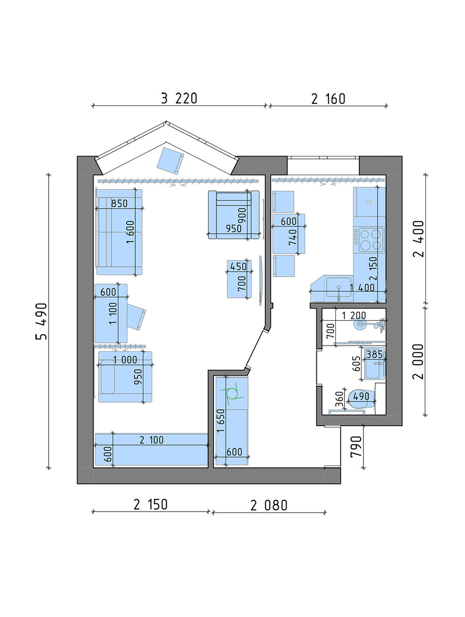
Как подготовится к разговору со строительной бригадой Первое что необходимо сделать это получить представление о том как будет располагаться мебель и в какой стилистике будет жильё! Для этого нужно в масштабе от руки или если есть возможность в специальной программе зарисовать План с мебелью указав габариты помещения и размер мебели: В идеале же создать 3D модель помещения, но сделать это без специальных навыков будет затруднительно: Решив ключевые вопросы с расстановкой мебели переходим к Плану розеток и выключателей, решаем где они будут располагаться, зарисовываем на плане, указываем размеры от углов до центра розетки или блока розеток, не забываем указать на какой высоте от пола будет розетка или выключатель если эта высота не стандартная: Данный материал адресован людям без специальной подготовки, имеется в виду что хозяин квартиры сам делает проект и чертит карандашом на бумаге, поэтому и примеры-это рисунки сделанные от руки, а рядом тот же самый рисунок но сделанный в специ

Как подготовится к разговору со строительной бригадой

Первое что необходимо сделать это получить представление о том как будет располагаться мебель и в какой стилистике будет жильё! Для этого нужно в масштабе от руки или если есть возможность в специальной программе зарисовать План с мебелью указав габариты помещения и размер мебели:

-2

В идеале же создать 3D модель помещения, но сделать это без специальных навыков будет затруднительно:

-3

Решив ключевые вопросы с расстановкой мебели переходим к Плану розеток и выключателей, решаем где они будут располагаться, зарисовываем на плане, указываем размеры от углов до центра розетки или блока розеток, не забываем указать на какой высоте от пола будет розетка или выключатель если эта высота не стандартная:

-4

-5

Данный материал адресован людям без специальной подготовки, имеется в виду что хозяин квартиры сам делает проект и чертит карандашом на бумаге, поэтому и примеры-это рисунки сделанные от руки, а рядом тот же самый рисунок но сделанный в специальной программе.

После плана розеток чертим План освещения, на плане указываем расположение осветительных приборов, если это бра то указываем высоту, определяем какие светильники какими выключателями включаются и зарисовываем это на плане с помощью стрелочек:

-6

-7

На основании того же плана помещений указываем что будет на полах рисуем это в масштабе что бы уже на плане было видно как ляжет паркет или плитка, например если Вы планируете положить плитку 400х400 мм , а масштаб 1: 50 то 400/50=8мм то есть плитку на плане нужно чертить со сторонами по 8 мм. Итак чертим План полов:

-8

-9

Очень важный момент с оформлением стен, по площади это самые большие поверхности. Если просто то самым подходящим будет такой План отделки стен:

-10

-11

Если более подробно то придётся чертить Развёртки стен, это актуально при сложном оформлении интерьера:

-12

-13

Чертить развёртки гораздо сложнее и дольше, без специальных навыков будет трудновато.

План потолков нужен если потолок в два и более уровней или на потолке специальный декор или потолок красится в разные цвета, если же потолок одноцветный и в один уровень то можно обойтись и без плана потолков. В нашем случае уровень потолков не одинаковый, поэтому чертим:

-14

-15

На решение вышеописанных вопросов требуется время, как видно из практики это:

Расстановка мебели 1-2 недели
Решить что будет на стенах, полах потолках 1-2 недели
Расположение розеток 1нед
Расположение осветительных приборов и выключателей 1нед

Это просто решить, что и где будет, а если подбирать конкретные материалы то сюда можно прибавить ещё 1 месяц, а если и по цене подбирать, когда бюджет ограничен то и того больше.

Таким образом на решение всех необходимых вопросов уходит от 1,5 до 3 мес.

Это и есть одна из ключевых причин затягивания ремонта, когда Заказчик ещё не представляет, как должен выглядеть его интерьер, а неопытный Подрядчик пообещал сделать всё в определённый срок, напряжённая обстановка и трения в таком случае обеспечены!

Если делать полный Дизайн-Проект с подбором конкретных материалов, с визуализацией то его стоимость достаточно велика, цены для квартиры в 100 кв. м. колеблются от 200 до 400 т.р.

Успех ремонта кроется в том, что бы ясно представлять как будет выглядеть будущее жильё или офис, где что будет расположено, а главное в том, что бы донести это до строителей, мебельщиков и прочих специалистов

И так, подводим итоги!
для быстрого старта и бесперебойных работ необходимо:
Подобрать стилистику
1.Начертить
План с мебелью
2. Начертить Плану розеток и выключателей
3. Начертить План освещения
4. Зарисовать что будет на полах
План полов
5. Нарисовать что будет на стенах
План отделки стен
6. Нарисовать какие будут потолки
План потолков

Начертить данные чертежи можно по приведённым в статье примерам, в сущности это и будет Дизайн-проект в упрощённой форме, только без лишних финансовых затрат, однако понадобится время.

Для подготовки минимального комплекта чертежей что гораздо дешевле полного Дизайн-проекта Вы можете обратится ко мне и я разработаю и подготовлю для Вас необходимые чертежи на профессиональном уровне или, если захотите, нарисую их от руки!

Тел +7 981 020 01 03

Примеры проектов https://disk.yandex.ru/d/9IuutlANZ0b0Xg