Добавить в корзинуПозвонить
Найти в Дзене

📏Планировка решает всё: 8 решений, которые делают квартиру удобной

Когда люди выбирают квартиру или делают ремонт, они чаще всего смотрят на «красиво».
Но через пару месяцев становится понятно: важнее не стиль, а как работает пространство каждый день. За годы работы с квартирами мы увидели десятки планировок — и честно скажу: удобных среди них не так много. Ниже — разбор того, что действительно работает в жизни, а не только на визуализации. Объединённая кухня и гостиная — один из самых востребованных вариантов. Но удобной она становится не всегда. 📌 Когда это работает:
— есть чёткое зонирование (диван, остров, свет);
— кухня не «на виду» со входа;
— продумана вытяжка и хранение. Некоторые варианты: Открытые пространства — это красиво, но приватность никто не отменял. Даже в небольшой квартире лучше иметь отдельную спальню, возможность закрыться и простую тишину. Особенно если: 👉 Самая частая ошибка — жертвовать спальней ради «простора». Схема проста: отдельная спальня с дверью, общая зона (кухня-гостиная), минимум проходных комнат. Один из самых
Оглавление

Когда люди выбирают квартиру или делают ремонт, они чаще всего смотрят на «красиво».

Но через пару месяцев становится понятно: важнее не стиль, а
как работает пространство каждый день.

За годы работы с квартирами мы увидели десятки планировок — и честно скажу: удобных среди них не так много. Ниже — разбор того, что действительно работает в жизни, а не только на визуализации.

Дизайн

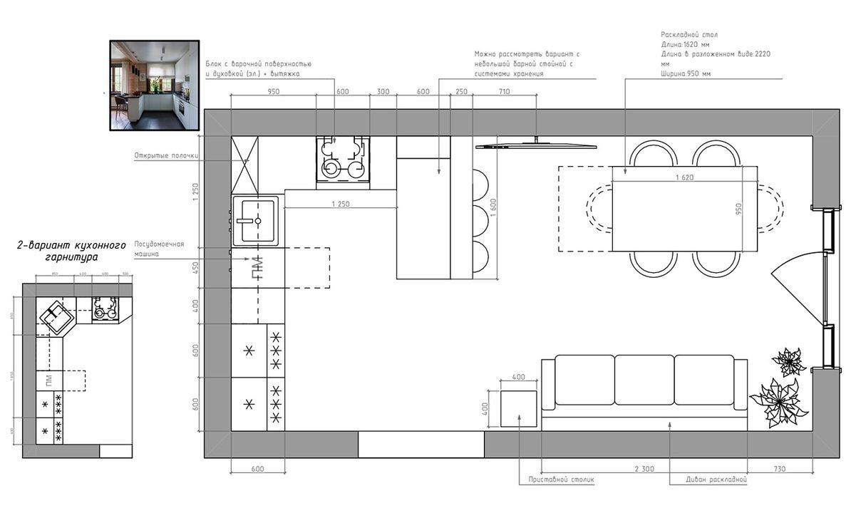
1. Кухня-гостиная: да, но с умом

Объединённая кухня и гостиная — один из самых востребованных вариантов.

Но удобной она становится не всегда.

-2

📌 Когда это работает:

— есть чёткое зонирование (диван, остров, свет);

— кухня не «на виду» со входа;

— продумана вытяжка и хранение.

Некоторые варианты:

  • кухня в одну линию или углом;
  • есть остров или обеденный стол;
  • диван стоит спиной к кухне.
Варианты зонирования островом в интерьере. Источник: ru.pinterest.com
Варианты зонирования островом в интерьере. Источник: ru.pinterest.com

2. Изолированные спальни — всегда плюс

Открытые пространства — это красиво, но приватность никто не отменял.

Даже в небольшой квартире лучше иметь отдельную спальню, возможность закрыться и простую тишину.

Особенно если:

  • работаете из дома;
  • есть ребёнок;
  • разный режим сна.

👉 Самая частая ошибка — жертвовать спальней ради «простора».

Планировка с изолизованной спальней. Источник: ru.pinterest.com
Планировка с изолизованной спальней. Источник: ru.pinterest.com

Схема проста: отдельная спальня с дверью, общая зона (кухня-гостиная), минимум проходных комнат.

3. Гардеробная вместо шкафов

Один из самых недооценённых элементов.

📌 Почему это удобно:

  • нет визуального шума;
  • всё хранение в одном месте;
  • .квартира выглядит дороже.
Варианты офомления гардеробной. ru.pinterest.com
Варианты офомления гардеробной. ru.pinterest.com

Даже 2–3 м² под гардеробную могут сильно изменить комфорт.

👉 Если нет места — лучше встроенные шкафы «в потолок», чем разрозненные решения.

Планировка спальни с гардеробной. Источник: ru.pinterest.com
Планировка спальни с гардеробной. Источник: ru.pinterest.com

Схема: выделенная зона 2–4 м² и вход из спальни или коридора.

4. Два санузла — если позволяет площадь

Это не роскошь, а реальный комфорт.

Особенно если:

  • живёт больше 2 человек;
  • утренние сборы совпадают;
  • есть гости.
Вариант планировки с двумя санузлами. Источник: ru.pinterest.com
Вариант планировки с двумя санузлами. Источник: ru.pinterest.com

Даже маленький гостевой санузел — уже огромный плюс. Один полный (ванна/душ), второй компактный.

5. Продуманная прихожая — половина удобства

То, что чаще всего недооценивают.

📌 Что должно быть:

  • место для хранения верхней одежды;
  • зона для обуви;
  • зеркало;
  • место присесть.
Варианты расстановки в прихожей. Источник: ru.pinterest.com
Варианты расстановки в прихожей. Источник: ru.pinterest.com

👉 Ошибка: «потом что-нибудь поставим». В итоге — хаос у входа.

6. Логика движения по квартире

Хорошая планировка — это когда вы не замечаете её.

Плохая — когда:

  • постоянно обходите мебель;
  • бьётесь об углы;
  • двери мешают друг другу.
Эргономика движения по квартире. Источник: ru.pinterest.com
Эргономика движения по квартире. Источник: ru.pinterest.com

📌 На что обращать внимание: ширина проходов; открывание дверей; удобство маршрутов.

👉 Это не видно на картинке, но критично в жизни.

7. Достаточное количество хранения

Главная проблема большинства квартир — нехватка систем хранения.

В результате: вещи «живут» на виду, интерьер быстро теряет вид, появляется ощущение беспорядка

Варианты зон хранения. Источник: ru.pinterest.com
Варианты зон хранения. Источник: ru.pinterest.com

📌 Решение:

  • встроенные шкафы;
  • скрытые системы;
  • продуманные ниши.

8. Рабочее место — даже если «не нужно»

Сейчас это уже не опция, а необходимость.

Даже если вы не работаете из дома постоянно, лучше предусмотреть:

  • небольшой стол;
  • нормальный свет;
  • розетки.
Варианты организации рабочего места в квартире. ru.pinterest.com
Варианты организации рабочего места в квартире. ru.pinterest.com
-12

Создать свой уютный мирок в собственной квартире совсем не сложно. Надо всего лишь сделать 2 простых шага и ваш идеальный ремонт может начаться уже сегодня:👇

1. Заранее бесплатно получить смету со стоимостью вашего ремонта: https://sk-espada.ru/
2. Выбрать подходящего дизайнера для визуализации своих идей! Бесплатно выберите своего дизайнера здесь: https://sk-espada.ru/design

Главный вывод

Удобная планировка — это не про тренды и «как у всех».

Она должна учитывать:

  • сценарии вашей жизни;
  • привычки;
  • реальное использование пространства.

Хороший дизайн начинается не с выбора цвета стен, а с ответа на вопрос: как вы будете жить в этой квартире каждый день.

Читайте еще на канале:👇