Добавить в корзинуПозвонить
Найти в Дзене
PUNKT-A.INFO

В Астрахани дали зеленый свет строительству ЖК без поликлиники и без парковок

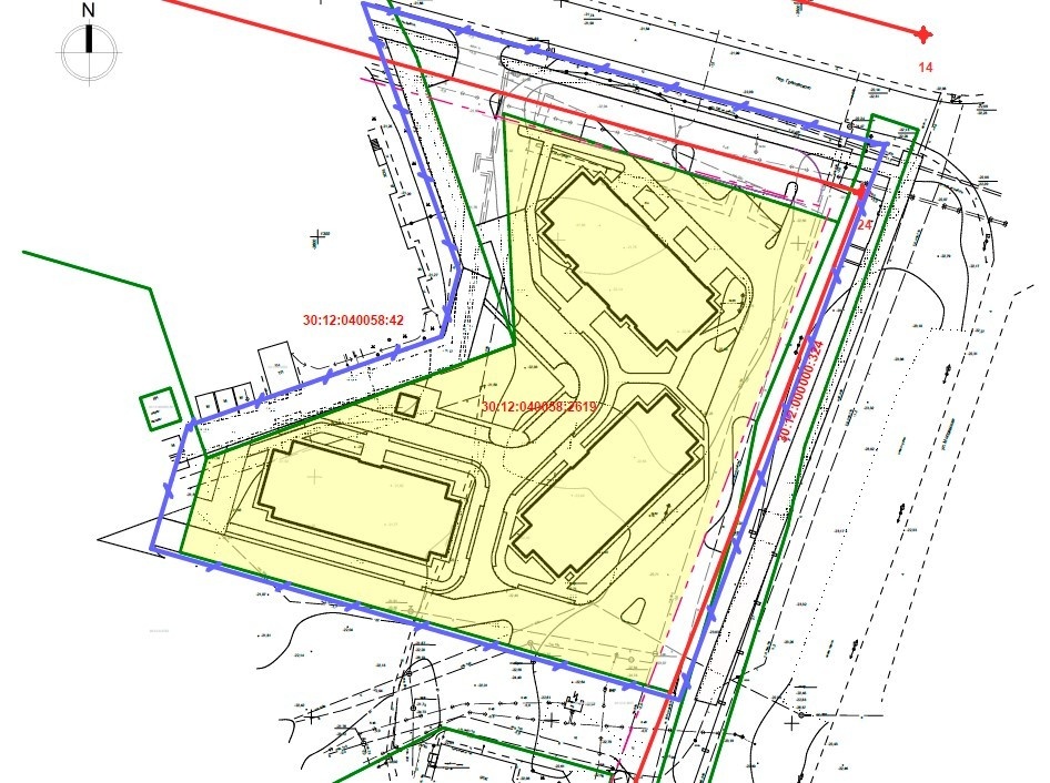
Недавно мы писали, что в крупном микрорайоне Астрахани при строительстве многоэтажек планировали разместить в них поликлинику. Однако новый застройщик передумал. Теперь выясняется, что в новом ЖК не будет не только медучреждения, но и нужного числа парковочных мест. Застроить пустырь на пересечении переулка Грановского и улицы Мичурина несколько лет назад задумала компания «Лютан-Стройсервис». В 2018 году был утвержден проект планировки территории, включавший четыре 9-этажки. В одной из них планировалось разместить встроенно-пристроенную поликлинику на 500 посещений в смену – поскольку, как было указано в проекте, микрорайон не обеспечен амбулаторным обслуживанием шаговой доступности (1000 метров). Однако «Лютан-Стройсервис» к стройке так и не приступил. В прошлом году на площадку зашла другая компания – Специализированный застройщик АИБ. Как оказалось, незаконно – после обращения жителей окрестных домов в службу стройнадзора выяснилось, что разрешение на строительство не выдавалось. А

Недавно мы писали, что в крупном микрорайоне Астрахани при строительстве многоэтажек планировали разместить в них поликлинику. Однако новый застройщик передумал. Теперь выясняется, что в новом ЖК не будет не только медучреждения, но и нужного числа парковочных мест.

Застроить пустырь на пересечении переулка Грановского и улицы Мичурина несколько лет назад задумала компания «Лютан-Стройсервис». В 2018 году был утвержден проект планировки территории, включавший четыре 9-этажки. В одной из них планировалось разместить встроенно-пристроенную поликлинику на 500 посещений в смену – поскольку, как было указано в проекте, микрорайон не обеспечен амбулаторным обслуживанием шаговой доступности (1000 метров).

Однако «Лютан-Стройсервис» к стройке так и не приступил. В прошлом году на площадку зашла другая компания – Специализированный застройщик АИБ. Как оказалось, незаконно – после обращения жителей окрестных домов в службу стройнадзора выяснилось, что разрешение на строительство не выдавалось.

Администрация Астрахани обратилась в суд с требованием остановить стройку и ограничить доступ на площадку. А «АИБ» тем временем приступил к узаконению стройки.

Новый проект освоения территории был вынесен на общественное обсуждение. Он претерпел изменения. Вместо четырех многоэтажек теперь фигурируют три, но большей высотности: две 10-этажных и одна 17-этажная. 17-этажка предполагается с нежилым первым этажом, но это будет не поликлиника.

-2

Суммарный жилой фонд новых домов составит более 14 тысяч кв. метров. Предполагается, что в них заселится 471 человек. Количество квартир не указано, но надо думать, практически в каждой семье будет авто. При этом проект предполагает всего 76 парковочных мест – из них 68 постоянных и 8 гостевых.

Тем, кому не хватит места для парковки, предлагается ставить машины в полукилометре, рядом с конечной остановкой автобусов. Если, конечно, удастся договориться с собственником участка, так как земля там частная.

Так себе удобство, но формально нормы соблюдены: как указали разработчики, в соответствии с п. 6.1.3. местных нормативов градостроительного проектирования сооружения для хранения легковых автомобилей допустимо размещать в радиусе 250 -300 м от мест жительства автовладельцев, но не более чем в 800 м.

Такой куцеватый, казалось бы, проект, тем не менее благополучно прошел общественные обсуждения и был утвержден министерством имущественных и градостроительных отношений Астраханской области. Так что осталось совсем немного – и стройка вновь стартует.

Новое строительство – это, конечно, хорошо. Это комфортное жилье, экономика, развитие города. Еще лучше, если вместе с «человейниками» строятся новые коммунальные сети, подтягивается транспортная и социальная инфраструктура. Сколько бились жильцы ЖК «Сердце Каспия», чтобы не допустить возведения новых высоток по соседству. Указывали на ветхие коммуникации, перегруженность дорог, нехватку школ, детских садов, поликлиник, парковок, мест для прогулок. А также угрозу обрушения берега, не предназначенного для такой плотной высотной застройки. Но, несмотря на дважды отрицательное заключение общественных обсуждений, разрешение на строительство выдали.

У нас много говорят об уходе от точечной застройки Астрахани. Но пока это больше на словах и на бумаге. По факту застройщики стремятся воткнуть на каждом клочке земли как можно больше квартир. А остальное – забота властей. Власти же, как ни странно, дают на это добро.

Фото: ПУНКТ-А