Добавить в корзинуПозвонить
Найти в Дзене
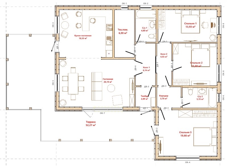
Ильвира Гогель

🏠💰 Один и тот же дом. Разная цена.

Почему так происходит на самом деле
Один из самых частых разговоров на практике выглядит примерно так:
Клиент показывает два дома.
Снаружи — почти одинаковые.
Оглавление

Почему так происходит на самом деле

Один из самых частых разговоров на практике выглядит примерно так:

Клиент показывает два дома.

Снаружи — почти одинаковые.

  • одинаковая площадь
  • похожая форма
  • один стиль

И задаёт вопрос:

👉 “Почему один стоит дороже?”

🏗 Что видно снаружи — не имеет значения

На первый взгляд кажется, что разницы нет.

Но внутри начинается то, что не видно на картинке.

📍 Реальная ситуация из практики

В одном случае дом был спроектирован “по картинке”.

Красиво на визуализации:

  • большие холлы
  • сложная геометрия
  • эффектные решения

Но при попытке строительства выяснилось:

  • сложные узлы увеличили стоимость
  • часть пространства стала “пустой площадью”
  • инженерные решения усложнились
  • эксплуатация оказалась неудобной

Во втором случае проект делался иначе.

Сначала думали не о внешнем виде,

а о том:

  • как люди будут жить
  • как будет двигаться семья
  • где будут основные нагрузки
  • как упростить стройку

И итог получился другим:

  • меньше лишних метров
  • проще реализация
  • дешевле строительство
  • удобнее жизнь

💰 Где реально появляется разница в цене

Не в отделке.

Не в фасаде.

А здесь:

👉 в количестве ошибок, заложенных в проект

❗ Самое важное, что обычно не видно

Дорогим дом делает не “материал”.

А:

  • сложность планировки
  • лишние площади
  • инженерные пересечения
  • переделки на стройке

🧠 Почему это критично

Потому что ошибка на бумаге:

👉 стоит в 10 раз дешевле, чем ошибка на стройке

🏁 Итог

Два дома могут выглядеть одинаково.

Но один из них:

  • продуман
  • логичен
  • экономичен

А второй:

  • красив на картинке
  • дорог в реализации
  • неудобен в жизни

💬 Главный вывод

Цена дома формируется не внешним видом.

👉 а качеством решений, которые были приняты до начала стройки