Добавить в корзинуПозвонить
Найти в Дзене
DIVAN.RU

Французская классика в питерской однушке 45 кв.м: история преображения однушки в старом фонде

Эта квартира расположена в доме 1902 года постройки на улице Некрасова. Здесь живет молодая девушка, основным пожеланием которой был спокойный интерьер с яркими акцентами, который не выбивался бы из питерского «контекста». Заглянем в гости. Объект: однокомнатная квартира 45 кв.м, г. Санкт-Петербург (потолки 3,56 м) Автор проекта: дизайнер Александра Чигинцева, студия CHI DESIGN; автор фото: Дмитрий Цыренщиков «Во время ремонта произошло приятное знакомство, — рассказывает дизайнер Александра Чигинцева. — Соседка заказчицы, пожилая женщина с десятого этажа, часто заходила к нам на стройку. Чтобы компенсировать шум от работ, мы помогали ей с домашними делами и учили пользоваться смартфоном. Особенно впечатлило, что она специально ходит пешком по лестнице, чтобы поддерживать форму. В подъезде на площадке каждого этажа для этого стоит стульчик — чтобы бабушка могла отдохнуть при очередном подъеме». Изначально квартира имела линейную планировку, где комната и кухня были разделены длинным ко
Оглавление

Эта квартира расположена в доме 1902 года постройки на улице Некрасова. Здесь живет молодая девушка, основным пожеланием которой был спокойный интерьер с яркими акцентами, который не выбивался бы из питерского «контекста». Заглянем в гости.

Объект: однокомнатная квартира 45 кв.м, г. Санкт-Петербург (потолки 3,56 м)

Автор проекта: дизайнер Александра Чигинцева, студия CHI DESIGN; автор фото: Дмитрий Цыренщиков

Пожелания заказчицы

  • Светлое пространство с элементами французского шика.
  • Универсальный интерьер, не привязанный к трендам и конкретной стилистике.
  • Сочетание современной мебели с винтажными деталями в декоре.

«Во время ремонта произошло приятное знакомство, — рассказывает дизайнер Александра Чигинцева. — Соседка заказчицы, пожилая женщина с десятого этажа, часто заходила к нам на стройку. Чтобы компенсировать шум от работ, мы помогали ей с домашними делами и учили пользоваться смартфоном. Особенно впечатлило, что она специально ходит пешком по лестнице, чтобы поддерживать форму. В подъезде на площадке каждого этажа для этого стоит стульчик — чтобы бабушка могла отдохнуть при очередном подъеме».

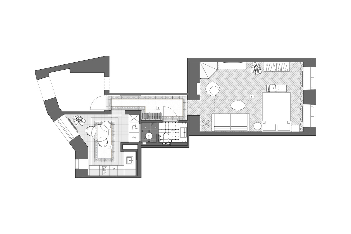
Планировочное решение

Изначально квартира имела линейную планировку, где комната и кухня были разделены длинным коридором. В процессе ремонта пространство немного «доработали»: расширили дверной проем на кухню и, перераспределив часть площади санузла, создали удобную зону для хранения одежды в коридоре.

Планировочное решение и расстановка мебели
Планировочное решение и расстановка мебели

Гостиная и спальня

«Заказчица хотела светлый интерьер и питерское «настроение» в квартире, что определило выбор сложного серо-зеленого как базового цвета. В гостиной мы добавили бордовый акцент. Бордово-красный, молочный и серо-зеленый — вот три цвета, которые стали основой дизайна», — комментирует дизайнер.

-3

Для зонирования спальной зоны используется ротанговая ширма. Декоративный акцент в зоне отдыха — панно из обоев William Morris с молдинговым обрамлением за изголовьем кровати, напротив которого размещен гардеробный шкаф.

В квартире отреставрировали старинную печь, превратив ее в камин. Восстановили декоративную лепнину на потолке. Центральное место над диваном занимает большое зеркало, которое визуально увеличивает высоту помещения и служит «разделителем» между гостиной и спальней, смягчая строгие линии интерьера.

Диван Динс от divan.ru в винном оттенке стал центральным элементом интерьера. Благодаря элегантному дизайну и компактным размерам модель идеально вписалась в концепцию проекта.

➡️Товары бренда divan.ru

Кухня

Угловой черно-белый гарнитур расположили на максимальном удалении от входа в кухню. В нише напротив окна скрывается шкаф, в котором нашлось место для холодильника, стиральной машины и хозяйственного блока для хранения бытовой химии.

Газификация квартиры потребовала установки стеклянной откатной двери на расширенном входе в кухню.

Обратите внимание на графичный потолочный плинтус. Он не только визуально увеличивает высоту потолка, но и гармонично сочетается с черным профилем дверного полотна.

-7

Прихожая

Пол в прихожей оформлен плиткой, аналогичной той, что использована на кухне.

Стены «разделены»: нижняя часть украшена белыми молдингами, верхняя — окрашена в серый. Для хранения одежды и обуви установлена комбинированная вешалка из дерева и ротанга.

Санузел

Каждый сантиметр этого санузла продуман: пространство вмещает душевую, раковину с подвесной тумбой, зеркало и унитаз со скрытой инсталляцией. Для отделки использовали комбинацию двух видов плитки: на полу — традиционный питерский «октагон», на стенах — черно-белая мозаика с выраженным «зонированием».

-9

«Проект идеально вписался в свое окружение, — резюмирует дизайнер. — Путь через Некрасовский сад и подъем на старинном лифте ведет в квартиру, где интерьер полностью соответствует месту. При этом мы добились современного комфорта, избегая создания исторической реконструкции».

💥 Обновите интерьер выгодно этой весной с промокодами в divan.ru:
-5000₽ на заказ от 75 000₽ с ДАРИМ5 | -15 000₽ на заказ от 150 000₽ с ДАРИМ15

-10

============================

Оцените интерьер в комментариях, а если материал понравился — не забудьте поставить лайк👍

🖤divan.ru — не только блог про интерьеры, но и производитель доступной дизайнерской мебели. Ищите новые идеи и переходите на сайт, чтобы воплотить их в жизнь.