Добавить в корзинуПозвонить
Найти в Дзене
ПСК "Градиент"

Одноэтажный дом для семьи: разбираем проект с площадью 114,5 м²

Мечтаете о собственном доме, где детали продуманы для вашего удобства? Устали от долгих поисков? Мы предлагаем готовое решение - проекты домов, которые сэкономят вам время, нервы и деньги. Почему готовые проекты это выгодно? Общая площадь: 114,5 м².
Количество комнат: 4 (2 спальни, мастер-спальня, кухня-гостиная).
Санузлы: 2. Стиль архитектуры: современный с элементами минимализма - лаконичные формы, большие окна, нейтральная цветовая гамма. Такой дом будет смотреться стильно и актуально долгие годы. Почему этот проект особенный? Хотите увидеть полный проект с расчётом точной стоимости? Заходите на наш сайт или изучите каталог в офисе компании. Не откладывайте мечту о собственном доме! Оставьте заявку на консультацию, и мы поможем подобрать идеальный проект под ваш бюджет и пожелания. Наши эксперты ответят на все вопросы, рассчитают точную стоимость и предложат индивидуальные решения.

Мечтаете о собственном доме, где детали продуманы для вашего удобства? Устали от долгих поисков? Мы предлагаем готовое решение - проекты домов, которые сэкономят вам время, нервы и деньги.

Почему готовые проекты это выгодно?

  • Экономия времени: не нужно тратить месяцы на разработку планировки - сразу переходите к строительству.
  • Проверенные решения: проекты разработаны с учётом строительных норм и пожеланий реальных клиентов.
  • Оптимизация пространства: каждая комната функциональна и удобна.

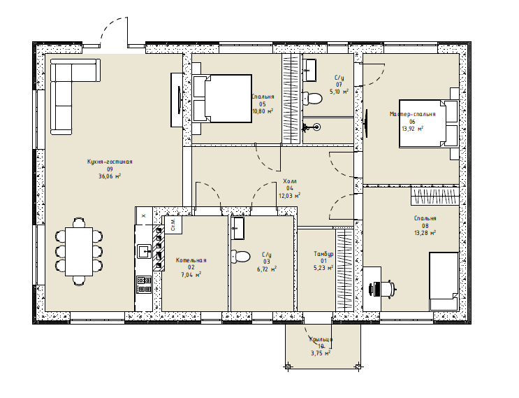
Общая площадь: 114,5 м².
Количество комнат: 4 (2 спальни, мастер-спальня, кухня-гостиная).
Санузлы: 2.

-2

  • просторная кухня-гостиная (36,06 м²) сердце дома, где собирается вся семья
  • мастер-спальня (13,92 м²) с отдельным санузлом личное пространство для отдыха
  • две дополнительные спальни (10,80 м² и 13,28 м²) идеально для детей или гостей
  • функциональный холл (12,03 м²) создаёт ощущение простора при входе
  • котельная (7,04 м²) всё инженерно-техническое оборудование скрыто от глаз
  • тамбур (5,23 м²) защищает дом от холода и пыли
  • удобное крыльцо (3,75 м²) приветливая входная зона

Стиль архитектуры: современный с элементами минимализма - лаконичные формы, большие окна, нейтральная цветовая гамма. Такой дом будет смотреться стильно и актуально долгие годы.

-3

Почему этот проект особенный?

  • Одноэтажная планировка - удобно для семей с детьми и пожилых людей, нет лестницы, все комнаты на одном уровне.
  • Рациональное зонирование: приватная зона (спальни) отделена от общественной (кухня-гостиная).
  • Высота потолков 3 метра - создаёт ощущение простора и свободы.
  • Прочные и энергоэффективные материалы: свайно-ростверковый фундамент надёжная основа для дома;
    стены из газобетона (толщина несущих стен 300 мм, перегородок 100 мм) - обеспечивают отличную тепло- и звукоизоляцию;
    утепление минеральной ватой (50 мм) снижает расходы на отопление.
  • Готовая отделка штукатуркой - экономия времени и средств на черновых работах.

Хотите увидеть полный проект с расчётом точной стоимости? Заходите на наш сайт или изучите каталог в офисе компании.

-4

Почему стоит выбрать наш проект?

  • Гибкость: можем адаптировать планировку под ваши пожелания - изменить размеры комнат, добавить террасу или гараж.
  • Опыт: более 10 лет строим дома «под ключ» - знаем все нюансы и избегаем ошибок.
  • Гарантия: предоставляем письменную гарантию на все виды работ.
  • Сроки: строим быстро и без простоев - ваш дом будет готов в оговоренные сроки.

Не откладывайте мечту о собственном доме! Оставьте заявку на консультацию, и мы поможем подобрать идеальный проект под ваш бюджет и пожелания. Наши эксперты ответят на все вопросы, рассчитают точную стоимость и предложат индивидуальные решения.