Добавить в корзину
Позвонить
Найти в Дзене
Войти
MHOUSE.PRO | Строительство модульных домов
18 подписчиков
Подписаться
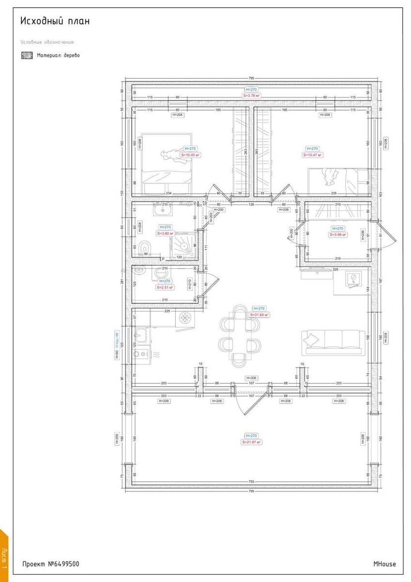
Планировка дома М-73 Люкс
10 апреля
10 апр
~1 мин
☝🏽 Любые вопросы вы можете задать в комментариях 👇🏼
☝🏽 Любые вопросы вы можете задать в комментариях 👇🏼
...
Читать далее
Планировка дома М-73 Люкс ☝🏽
Любые вопросы вы можете задать в комментариях 👇🏼
2268503620.920.1776165371157.60074